Mieszkanie 4 pokojowe na Sprzedaż

4 pokoje 96.36m²
WIELKOPOLSKIE poznański ul. Zachodnia

860 000 PLN

Dwupoziomowe mieszkanie w zabudowie szeregowej 96.36 m²

860 000 PLN Negocjuj cenę >

WIELKOPOLSKIE poznański ul. Zachodnia MAPA

1/28

860 000 PLN WYŁĄCZNOŚĆ   

Na sprzedaż 4 pokojowe, ciche i zadbane mieszkanie przy ul. Zachodniej 11 w Plewiskach.

Opis nieruchomości:

Dwupoziomowe mieszkanie (1. piętro + poddasze użytkowe) położone jest w kameralnej zabudowie szeregowej przy spokojnej ulicy, co zapewnia mieszkańcom poczucie prywatności i komfort codziennego życia.

Przemyślany układ pomieszczeń, dwie łazienki oraz wyraźny podział na strefę dzienną i prywatną sprawiają, że mieszkanie idealnie odpowiada na potrzeby rodziny.

We wnętrzu zastosowano naturalne materiały - drewniane podłogi, schody oraz elementy wyposażenia nadają przestrzeni ciepły, ponadczasowy charakter i tworzą przytulny klimat sprzyjający odpoczynkowi.

Mieszkanie jest zadbane, częściowo umeblowane i gotowe do zamieszkania, bez konieczności ponoszenia większych nakładów finansowych.

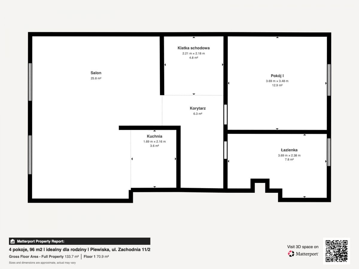
Powierzchnia: 96,36 m²

Rozkład pomieszczeń:

1. piętro:



  • przestronny salon z wyjściem na balkon + aneks kuchenny

  • pokój

  • łazienka z wanną

  • korytarz z dużą szafą w zabudowie




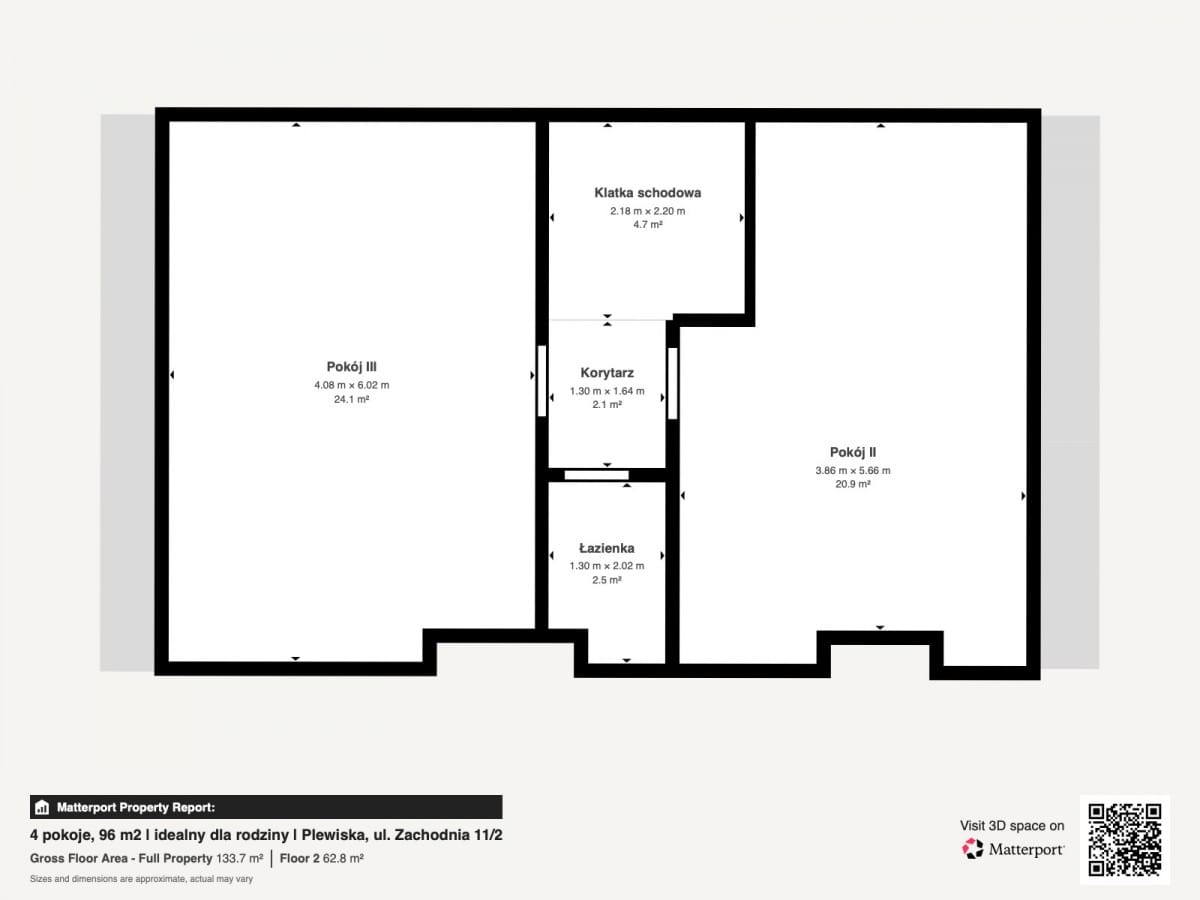
Poddasze użytkowe:



  • dwa pokoje (skosy)

  • łazienka z prysznicem




Dla kogo?

To idealna propozycja dla rodziny, która chce mieszkać blisko Poznania, jednocześnie ciesząc się spokojem, kameralnością i większą prywatnością niż w typowej zabudowie miejskiej.

Równie dobrze sprawdzi się dla osób aktywnych zawodowo, które potrzebują większej przestrzeni do życia i pracy - dodatkowe pokoje dają możliwość wydzielenia komfortowego home office, a dwupoziomowy układ zapewnia wygodny podział funkcji i codzienną wygodę.

Atuty mieszkania:



  • funkcjonalny, dwustronny układ

  • balkon z widokiem na piękną magnolię i zachody słońca

  • możliwość aranżacji miejsca postojowego przed budynkiem jako ogródka

  • dodatkowa przestrzeń do przechowywania (poddasze nieużytkowe)

  • gotowe do zamieszkania

  • pełna infrastruktura w pobliżu

  • szybki dojazd do Poznania oraz do A2



Lokalizacja:

Plewiska, bezpośrednio graniczące z Poznaniem, zapewniają komfort życia w spokojnym otoczeniu przy jednoczesnym szybkim dostępie do miejskiej infrastruktury z jej wszystkimi udogodnieniami.

W pobliżu znajdują się sklepy, szkoły, przedszkola oraz punkty usługowe, co pozwala wygodnie funkcjonować na co dzień bez konieczności dalszych dojazdów.

Cena: 860 000 zł

Opłaty: Mieszkanie bezczynszowe

gaz: ok. 250 zł
prąd: ok. 200 zł
woda/ścieki: ok. 150 zł
internet/kablówka

Dodatkowe informacje:


  • księga wieczysta bez obciążeń i hipoteki, jeden właściciel

  • światłowód w ulicy (możliwość podłączenia do mieszkania)








Pokaż więcejmniej  

 
Ogólne warunki:
Cena:860 000 PLN
Waluta:PLN
Liczba pokoi:4
Powierzchnia:96.36 m²
Cena za m2:8 925 PLN
Rynek:Wtórny
 
Opis budynku:
Rodzaj budynku:Szeregowy
Liczba pięter:2
Piętro:1
Stan budynku:bardzo dobry
Winda:nie
 
Standard mieszkania:
Stan nieruchomości:bardzo dobry
Rodzaj ogrzewania:Gazowe
 
Pomieszczenia i pokoje:
Typ kuchni:Bez okna otwarta na salon
 
Powierzchnia dodatkowa:
Balkon:tak
Komórka/Piwnica:nie
Loggia:nie
Ogródek:tak
Schowek:nie
Taras:nie
 
Bezpieczeństwo:
Monitoring:nie
Ochrona:nie
Teren ogrodzony:nie
 
Numer oferty:
CRM:34964544854

Pokaż więcejmniej  

Tagi

Masz pytania? Napisz!

Przepisz kod captcha:

Polecamy podobne oferty

Zapisz się na powiadomienia o podobnych ofertach

Przepisz kod captcha:

Zaktualizowaliśmy naszą Politykę Prywatności.

Nowe zapisy w Polityce Prywatności wynikają z konieczności dostosowania naszych działań oraz dokumentacji do nowych wymagań europejskiego Rozporządzenia o Ochronie Danych Osobowych (RODO), które jest stosowane od 25 maja 2018 r.

Zaawansowane