Dom 11 pokojowe na Sprzedaż

11 pokoje 841.5m²
WIELKOPOLSKIE Poznań Piątkowo ul. Ksawerego Zakrzewskiego

5 700 000 PLN

Gotowiec inwestycyjny z potencjałem 841.5 m²

5 700 000 PLN Negocjuj cenę >

WIELKOPOLSKIE Poznań Piątkowo ul. Ksawerego Zakrzewskiego MAPA

1/8

5 700 000 PLN WYŁĄCZNOŚĆ   

Budynek handlowo-mieszkalny w całości wynajęty | stabilny dochód | potencjał rozbudowy - Poznań, ul. Zakrzewskiego

Na sprzedaż w pełni wynajęty budynek handlowo-mieszkalny, położony w spokojnej i dobrze skomunikowanej części Poznania przy ul. Zakrzewskiego. Nieruchomość stanowi doskonałą propozycję inwestycyjną dla osób poszukujących bezpiecznej lokaty kapitału, zapewniającej regularny i przewidywalny dochód z najmu.

Dodatkowym atutem jest realny potencjał zwiększenia rentowności - możliwość przekształcenia części użytkowej w dodatkowe lokale mieszkalne i zwiększenia liczby mieszkań nawet do 10 lokali.

Nieruchomość oferuje:
-budynek w 100% wynajęty - zarówno część handlowa, jak i mieszkalna
-stały, bieżący dochód pasywny od pierwszego dnia
-możliwość zmiany funkcji części użytkowej na mieszkalną
-elastyczność inwestycyjną - wynajem długoterminowy, mieszany lub pełna funkcja mieszkaniowa
-niezależne wejścia i osobne liczniki mediów dla każdego segmentu
-stabilnych najemców i dobrą historię eksploatacyjną

Charakterystyka budynku:
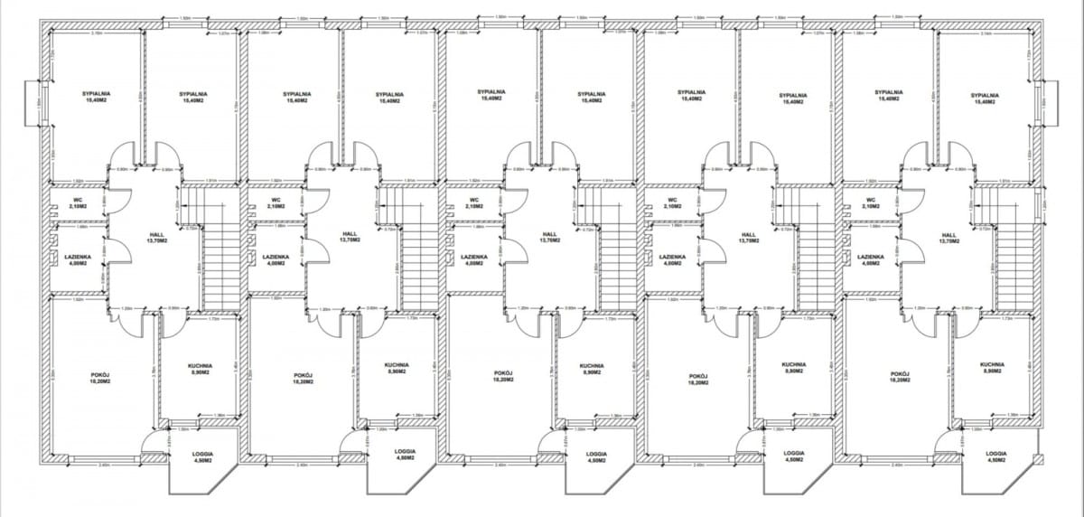
-zabudowa szeregowa - 5 segmentów
-budynek dwukondygnacyjny
-rok budowy: 1997-1999
-technologia tradycyjna, budynek ocieplony
-dach o konstrukcji drewnianej, pokryty blachodachówką
-pełne media: prąd, gaz, woda, kanalizacja
-łączna powierzchnia użytkowa: 841,50 m², w tym:
     -część handlowa: 393 m²
     -część mieszkalna: 5 mieszkań po 88,10 m²
-powierzchnia działki: 1149 m²
-miejsca parkingowe na terenie posesji

Część handlowa - parter:
-sala sprzedaży
-biuro
-pomieszczenie socjalne
-łazienka
-magazyn
-dodatkowe pomieszczenia zaplecza
-funkcjonalny układ umożliwiający zmianę przeznaczenia

Część mieszkalna - piętro (5 lokali):
Każde mieszkanie o powierzchni 88,10 m², w skład którego wchodzą:
-salon - 18 m²
-2 pokoje - po 16 m²
-kuchnia - 9 m²
-łazienka - 4 m²
-osobna toaleta - 2 m²
-korytarz, hol wejściowy, klatka schodowa

Lokale są w dobrym stanie technicznym, aktualnie wynajmowane i generują regularne przychody.


Analiza potencjału i strategie inwestycyjne:
Budynek oferuję wachlarz możliwości inwestycyjnych. Jest bardzo bezpieczną inwestycją z potencjałem na duże zyski.

Strategia A: Gotowiec inwestycyjny
Budynek jest aktualnie wynajmowany przynosząc stały i stabilny dochód, przyszły nabywca może z powodzeniem kontynuować stosunki najmu z każdym obecnym najemcą.

Strategia B: Duży flip
Budynek już na etapie budowy został przygotowany pod podzielenie go na pięć segmentów. Przy niskim nakładzie finansowym można wyodrębnić w nim pięć lokali i sprzedać z zyskiem

Strategia C: Zmaksymalizowany wynajem
Możliwość wykonania remontu wyodrębniając 10 lokali mieszkalnych o powierzchni ponad 80 metrów i osiągnięcie tym samym wysokiego Roi'u przy  stosunkowo nie dużym nakładzie finansowym

Lokalizacja:
-Poznań, ul. Zakrzewskiego
-spokojna okolica z dominującą zabudową jednorodzinną

W bezpośrednim sąsiedztwie:
-Galeria Plaza
-Galeria Pestka
-przystanki tramwajowe i autobusowe
-szkoły, restauracje, punkty usługowe
ok. 6 km do centrum miasta
bardzo dobra komunikacja samochodowa i publiczna

Cena - 5 700 000 pln







Pokaż więcejmniej  

 
Ogólne warunki:
Rynek:Wtórny
Cena:5 700 000 PLN
Waluta:PLN
Cena za m2:6 774 PLN
Liczba pokoi:11
 
Standard domu:
Stan budynku:bardzo dobry
Rok budowy:1999
Liczba pięter:1
 
Bezpieczeństwo:
Monitoring:nie
Teren strzeżony:nie
 
Numer oferty:
CRM:34964538169

Pokaż więcejmniej  

Masz pytania? Napisz!

Polecamy podobne oferty

Zapisz się na powiadomienia o podobnych ofertach

Zaktualizowaliśmy naszą Politykę Prywatności.

Nowe zapisy w Polityce Prywatności wynikają z konieczności dostosowania naszych działań oraz dokumentacji do nowych wymagań europejskiego Rozporządzenia o Ochronie Danych Osobowych (RODO), które jest stosowane od 25 maja 2018 r.

Zaawansowane