Mieszkanie 2 pokojowe na Sprzedaż

2 pokoje 54.31m²
POMORSKIE Gdańsk Śródmieście ul. Łąkowa

1 049 000 PLN

Inwestycja w sercu Gdańska 54.31 m²

1 049 000 PLN Negocjuj cenę >

POMORSKIE Gdańsk Śródmieście ul. Łąkowa MAPA

1/15

1 049 000 PLN WYŁĄCZNOŚĆ   

Kup i zarabiaj od pierwszego dnia!

Podana cena jest ceną netto.

Największe atuty
- rewelacyjna lokalizacja - tylko 7 minut spacerem od Fontanny Neptuna
- aktualnie wynajmowane w trybie hybrydowym: najemca długoterminowy + wynajem krótkoterminowy (lipiec-wrzesień)
- słoneczne, wszystkie okna oraz taras od strony południowej
- w pełni urządzone i wyposażone, gotowe do wprowadzenia

Lokalizacja
Inwestycja Apartamenty SCALA to połączenie bliskości Starego Miasta z ciszą i spokojem od turystycznego zgiełku.
W pobliżu:
- Długi Targ, Wyspa Spichrzów, Długie Pobrzeże, Motława, Bazylika Mariacka, Tramwaj Wodny i wiele innych atrakcji
- pełna infrastruktura usługowa i gastronomiczna
- kilkanaście minut komunikacją lub samochodem do plaży

Mieszkanie
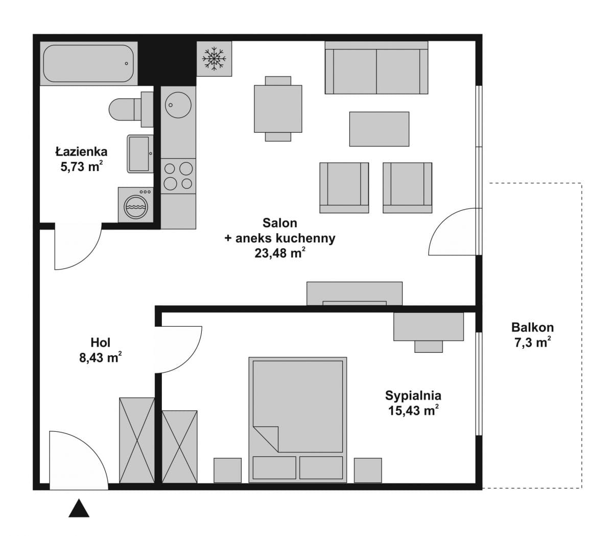
Przestronne, słoneczne mieszkanie o powierzchni 54,31m2 z południową ekspozycją, w pełni urządzone i gotowe do zamieszkania. Składa się z jasnego salonu z aneksem kuchennym i wyjściem na duży taras, ustawnej sypialni, komfortowej łazienki oraz przestronnego przedpokoju z miejscem na zabudowę. Kuchnia wykonana na wymiar ze sprzętem AGD, mieszkanie wykończone w podwyższonym standardzie. 

Budynek i inwestycja
SCALA to nowoczesna inwestycja z 2022 r., zachowująca historyczny charakter Starego Miasta. Scala odznacza się unikatową elewacją ze szlachetnej cegły ceramicznej, układaną w różne wątki, nawiązujące do okolicznej zabudowy. Wnętrza budynków Scali obfitują w lokalną symbolikę. Projektanci, zainspirowani kaflem znalezionym podczas wykopalisk archeologicznych, zastosowali elementy nawiązujące do gdańskiej tradycji pieców kaflowych

Dodatkowe informacje:
- Miejsce postojowe w hali garażowej - dodatkowo płatne 49 000 zł netto
- dodatkowe wyciszenie ścian między lokalami
- punkt ładowania samochodów elektrycznych






Pokaż więcejmniej  

 
Ogólne warunki:
Cena:1 049 000 PLN
Waluta:PLN
Liczba pokoi:2
Powierzchnia:54.31 m²
Cena za m2:19 315 PLN
Czynsz administracyjny:750 zł
Rynek:Wtórny
 
Opis budynku:
Rodzaj budynku:Blok mieszkalny
Rok budowy:2022
Liczba pięter:5
Piętro:3
Stan budynku:idealny
Winda:tak
 
Standard mieszkania:
Stan nieruchomości:idealny
Rodzaj ogrzewania:CO miejskie
 
Pomieszczenia i pokoje:
Typ kuchni:Aneks kuchenny
 
Powierzchnia dodatkowa:
Balkon:tak
Komórka/Piwnica:nie
Loggia:nie
Ogródek:nie
Schowek:nie
Taras:nie
 
Bezpieczeństwo:
Monitoring:tak
Ochrona:nie
Teren ogrodzony:nie
 
Numer oferty:
CRM:34964539020

Pokaż więcejmniej  

Tagi

Masz pytania? Napisz!

Przepisz kod captcha:

Polecamy podobne oferty

Zapisz się na powiadomienia o podobnych ofertach

Przepisz kod captcha:

Zaktualizowaliśmy naszą Politykę Prywatności.

Nowe zapisy w Polityce Prywatności wynikają z konieczności dostosowania naszych działań oraz dokumentacji do nowych wymagań europejskiego Rozporządzenia o Ochronie Danych Osobowych (RODO), które jest stosowane od 25 maja 2018 r.

Zaawansowane