Lokal użytkowy  pokojowe na Sprzedaż

pokoje 56.3m²
MAZOWIECKIE Warszawa Ochota ul. Opaczewska

1 000 000 PLN

Lokal na sprzedaż Opaczewska, Warszawa 56.3 m²

1 000 000 PLN Negocjuj cenę >

MAZOWIECKIE Warszawa Ochota ul. Opaczewska MAPA

1/15

1 000 000 PLN WYŁĄCZNOŚĆ   

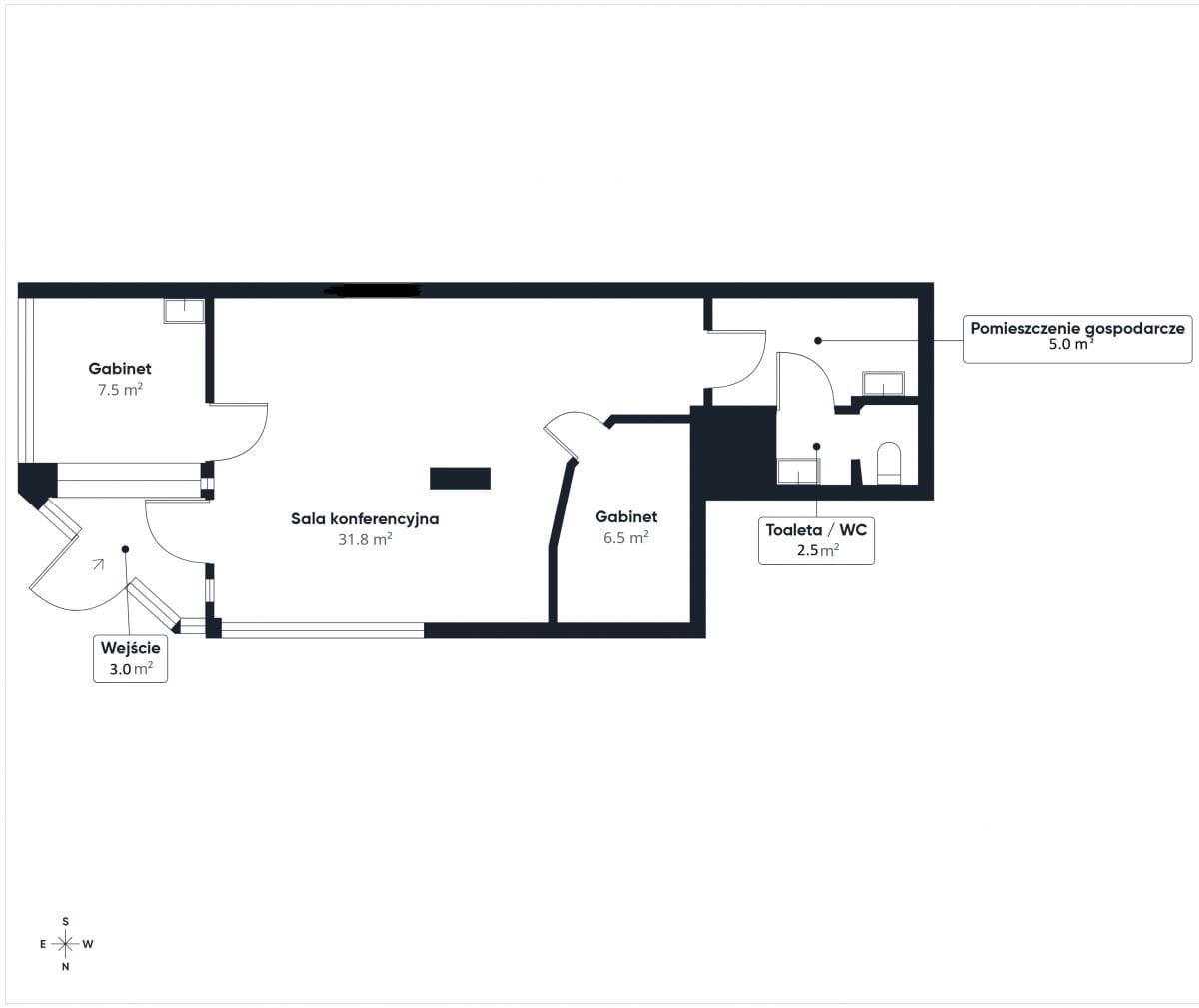
Lokal Użytkowy 56,3 m² | Parter | Przystosowany pod Salon Kosmetyczny, Ochota

Mam przyjemność zaprezentować Państwu  funkcjonalny i gotowy do prowadzenia działalności gospodarczej lokal użytkowy na ul. Opaczewskiej 43, o powierzchni użytkowej 56,3 m². 
To doskonała propozycja dla osób prowadzących działalność (np. beauty, wellness, językowa) szukających gotowej przestrzeni o wysokim potencjale biznesowym. Lokal spełnia wymagania sanepidu do prowadzenia działalności z sektora beauty. 
Nieruchomość usytuowana jest na  wysokim parterze w zadbanym budynku z 1999 roku na warszawskiej Ochocie.

NAJWAŻNIEJSZE ATUTY NIERUCHOMOŚCI:

Powierzchnia 56,3 m² z optymalnym podziałem na strefy zabiegowe i obsługowe.
Gotowy biznes: lokal w pełni przystosowany pod salon kosmetyczny (zgodność z normami sanepidu).
Witryny i wejście: duże, przeszklone witryny zapewniające doskonałą widoczność i doświetlenie wnętrza.
Klimatyzacja: zainstalowana w sali głównej oraz w jednym z gabinetów, gwarantująca komfort klientom i pracownikom.
STANDARD WYKOŃCZENIA:

Na podłogach panele (pod nimi znajduje się gres).
Wiatrołap chroniący przed zimnem.
Lokal przystosowany pod działalność beauty.
ROZKŁAD POMIESZCZEŃ:
Sala główna - przestronna, z klimatyzacją i dużymi witrynami.
Gabinet I - wyposażony w klimatyzację.
Gabinet II - bez klimatyzacji, idealny na dodatkowe usługi lub zaplecze.
Zaplecze socjalne - funkcjonalna przestrzeń dla personelu.
Toaleta.
Wiatrołap - oddzielający strefę wejściową.
LOKALIZACJA I OTOCZENIE:

Lokal znajduje się na wysokim parterze w budynku z 1999 roku, w ciągu komunikacyjno-handlowym. Obiekt jest ocieplony i utrzymany w dobrym stanie technicznym. Ochota to jedna z najbardziej cenionych dzielnic Warszawy. Bezpośrednie sąsiedztwo Parku Szczęśliwickiego - idealne miejsce na relaks dla klientów po wizycie w salonie.

KOMUNIKACJA:

Tuż obok pętla autobusowa, co zapewnia stały przepływ potencjalnych klientów i łatwy dojazd z każdej części miasta.
Kilka minut do przystanków licznych linii autobusowych.
Sprawny wyjazd w kierunku centrum oraz na obwodnicę Warszawy.  
STAN PRAWNY:
Uregulowany stan prawny - spółdzielcze własnościowe prawo do lokalu z czystą Księgą Wieczystą.
Łączny czynsz administracyjny: ok. 1 940 zł brutto .

Ten lokal to idealny wybór dla inwestora lub osoby szukającej gotowego miejsca na salon kosmetyczny, gabinet lekarski czy biuro w świetnej lokalizacji.
Nieruchomość może zostać sprzedana z widocznymi meblami (za dodatkową opłatą) lub bez.

Jeżeli oferta spełnia Państwa oczekiwania, zapraszam  serdecznie do kontaktu oraz na prezentację nieruchomości 7 dni w tygodniu.






Pokaż więcejmniej  

 
Ogólne warunki:
Rynek:Wtórny
Cena:1 000 000 PLN
Waluta:PLN
Powierzchnia:56.3 m²
Cena za m2:17 762 PLN
 
Opis budynku:
Winda:nie
 
Bezpieczeństwo:
Monitoring:nie
Ochrona:nie
 
Powierzchnia dodatkowa:
Balkon:nie
Komórka/Piwnica:nie
Loggia:nie
 
Numer oferty:
CRM:34964549724

Pokaż więcejmniej  

Agnieszka Gozdek

Pośredniczka w Obrocie Nieruchomościami



Masz pytania? Napisz!

Przepisz kod captcha:

Polecamy podobne oferty

Zapisz się na powiadomienia o podobnych ofertach

Przepisz kod captcha:

Zaktualizowaliśmy naszą Politykę Prywatności.

Nowe zapisy w Polityce Prywatności wynikają z konieczności dostosowania naszych działań oraz dokumentacji do nowych wymagań europejskiego Rozporządzenia o Ochronie Danych Osobowych (RODO), które jest stosowane od 25 maja 2018 r.

Zaawansowane