Mieszkanie 3 pokojowe na Sprzedaż

3 pokoje 74.4m²
MAZOWIECKIE Warszawa Praga-Południe al. Aleja Stanów Zjednoczonych

1 100 000 PLN

Sprzedam, 3-pok. obok ronda Wiatraczna 74.4 m²

1 100 000 PLN Negocjuj cenę >

MAZOWIECKIE Warszawa Praga-Południe al. Aleja Stanów Zjednoczonych MAPA

1/12

1 100 000 PLN WYŁĄCZNOŚĆ   

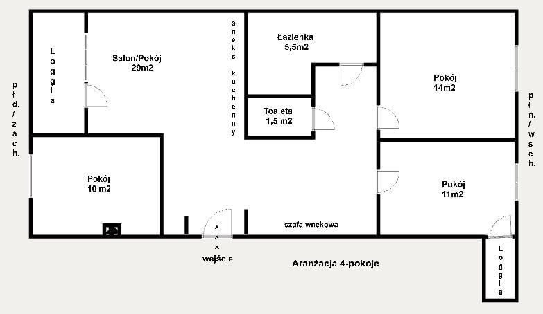
Na sprzedaż przestronne, rozkładowe 3-pokojowe mieszkanie o powierzchni 74,4 m², zlokalizowane na 5 piętrze z 10 pięter  budynku z 2007 roku przy al. Stanów Zjednoczonych tu obok ronda Wiatraczna. W skład lokalu wchodzą:


  • salon (ok. 29 m²) z wyjściem na loggię z widokiem na patio i budynek od wewnątrz;

  • dwa oddzielne pokoje (ok. 14 m² i 11 m²), przy czym mniejszy pokój posiada wyjście na drugą zabudowaną loggię;

  • kuchnia z oknem (częściowo otwarta na salon) o pow. ok. 6 m²;

  • łazienka z wanną, ok. 4,5m² ;

  • oddzielna toaleta, ok. 1,5 m²

  • przedpokój o  pow. ok. 9 m² (z miejscem na dużą szafę wnękową w zabudowie.


Mieszkanie dwustronne, idealnie dzieli mieszkanie na część dzienną oraz sypialnianą. Ekspozycja dwustronna na płd.-zach. oraz płn. wsch. Mieszkanie do własnej aranżacji, łatwa możliwość zmiany układu pomieszczeń otrzymując 4-pokojowe mieszkanie (3 sypialnie i salon z aneksem kuchennym. Z uwagi na usytuowanie, mieszkanie jest bardzo ciche, jak na tę lokalizację.
Na podłogach w pokojach drewniany parkiet w bardzo dobrym stanie. Wysokość pomieszczeń wynosi 260 cm, co zwiększa poczucie przestrzeni.  Lokal do odświeżenia lub częściowego remontu.
Budynek 10-kondygnacyjny, klatki schodowe w dobrym stanie, duża winda. Brak bezpośredniego sąsiedztwa na klatce schodowej z innymi mieszkaniami. 
Wokół zadbane otoczenie, mnóstwo punktów handlowo-usługowych, bazarek (z codzienną dostawą świeżych warzyw  i owoców). Bardzo dobra lokalizacja - tuż obok rondo Wiatraczna,  przystanki komunikacji miejskiej (tramwaj, autobus), z łatwym połączeniem z innymi dzielnicami. Dojazd komunikacją do ścisłego centrum zajmuje ok. 25 min.
Informacje dodatkowe:


  • lokal stanowiący odrębną nieruchomość, bez obciążeń, możliwość zakupu posiłkując się kredytem hipotecznym;

  • opłaty na rzecz Spółdzielni Mieszkaniowej (wraz z zaliczkami na media dla 2 osób /woda zimna, ciepła, ogrzewanie, wywóz śmieci/ wynosi ok. 990 zł/miesięcznie;

  • brak miejsca postojowego w garażu podziemnym oraz komórki lokatorskiej.


Dostępne do oględzin od 01 października Zapraszam na prezentację.



Pokaż więcejmniej  

 
Ogólne warunki:
Cena:1 100 000 PLN
Waluta:PLN
Liczba pokoi:3
Powierzchnia:74.4 m²
Cena za m2:14 785 PLN
Czynsz administracyjny:990 zł
Rynek:Wtórny
 
Opis budynku:
Rodzaj budynku:Blok mieszkalny
Rok budowy:2007
Liczba pięter:10
Piętro:5
Stan budynku:dobry
Winda:tak
 
Standard mieszkania:
Stan nieruchomości:dobry
Rodzaj ogrzewania:CO miejskie
 
Pomieszczenia i pokoje:
Typ kuchni:Z oknem otwarta na salon
 
Powierzchnia dodatkowa:
Balkon:nie
Komórka/Piwnica:nie
Loggia:nie
Ogródek:nie
Schowek:nie
Taras:nie
 
Bezpieczeństwo:
Monitoring:nie
Ochrona:nie
Teren ogrodzony:nie
 
Numer oferty:
CRM:34964535883

Pokaż więcejmniej  

Tagi

Karolina Grudzińska-Wolińska

Managerka Zespołu / Pośredniczka w Obrocie Nieruchomościami



Masz pytania? Napisz!

Przepisz kod captcha:

Polecamy podobne oferty

Zapisz się na powiadomienia o podobnych ofertach

Przepisz kod captcha:

Zaktualizowaliśmy naszą Politykę Prywatności.

Nowe zapisy w Polityce Prywatności wynikają z konieczności dostosowania naszych działań oraz dokumentacji do nowych wymagań europejskiego Rozporządzenia o Ochronie Danych Osobowych (RODO), które jest stosowane od 25 maja 2018 r.

Zaawansowane