Lokal użytkowy  pokojowe na Sprzedaż

pokoje 79.25m²

902 033 PLN

Lokal usługowy Nowe Żerniki 79.25 m²

902 033 PLN Negocjuj cenę >

MAPA

1/11

902 033 PLN WYŁĄCZNOŚĆ   

Lokalizacja: Żerniki
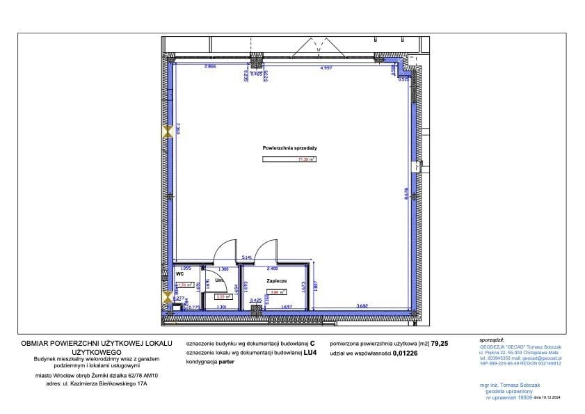
• Metraż: 79,25 m²
• Wysokość lokalu: 260 cm
• Zabudowa: budynek mieszkalny, parter
• Wejście: bezpośrednio z ulicy
• Stan lokalu: deweloperski
• Cena: 902 033 zł netto (1 109 500 zł brutto)

Na sprzedaż nowy lokal użytkowy o powierzchni 79,25 m², położony na parterze nowoczesnego budynku mieszkalnego przy ul. Kazimierza Bieńkowskiego 17A we Wrocławiu (osiedle Żerniki).
Lokal znajduje się na poziomie 0, z niezależnym wejściem od strony ulicy oraz dużymi, przeszklonymi witrynami, które zapewniają doskonałe doświetlenie wnętrza i bardzo dobrą ekspozycję od strony chodnika.

Układ pomieszczeń jest czytelny i funkcjonalny, co umożliwia swobodną aranżację i dostosowanie przestrzeni do różnych typów działalności– handlowej, usługowej, biurowej, kosmetycznej czy projektowej.

ROZKŁAD POMIESZCZEŃ:
– Główne pomieszczenie– 71,50 m²
– Zaplecze / pomieszczenie socjalne– 5,40 m²
– WC– 1,35 m²
– Pomieszczenie techniczne / umywalnia– 1,00 m²

STAN I WYPOSAŻENIE LOKALU:
– stan deweloperski (ściany przygotowane pod malowanie),
– rozprowadzone instalacje elektryczne i sanitarne,
– ogrzewanie miejskie (kaloryfery),
– przyłącza wodno-kanalizacyjne,

Doprowadzone wszystkie niezbędne media:
• energia elektryczna,
• woda i kanalizacja miejska,
• ogrzewanie miejskie.

LOKALIZACJA:
Inwestycja zlokalizowana jest w dynamicznie rozwijającej się części Wrocławia– Żernikach, w otoczeniu nowych budynków mieszkalnych oraz terenów zielonych.
W bezpośrednim sąsiedztwie znajdują się:
– liczne nowe osiedla mieszkaniowe,
– parkingi naziemne,
– przystanki komunikacji miejskiej (autobus, kolej podmiejska) w zasięgu kilku minut spaceru,
szybki dojazd do centrum miasta oraz obwodnicy Wrocławia.

Lokal stanowi doskonałą propozycję dla inwestora lub przedsiębiorcy poszukującego funkcjonalnej przestrzeni w nowej inwestycji na rozwijającym się osiedlu z dużym potencjałem klientów w najbliższym otoczeniu.




Pokaż więcejmniej  

 
Ogólne warunki:
Rynek:Wtórny
Cena:902 033 PLN
Waluta:PLN
Powierzchnia:79.25 m²
Cena za m2:11 382 PLN
 
Opis budynku:
Rok budowy:2025
Liczba pięter:4
Winda:tak
 
Bezpieczeństwo:
Monitoring:nie
Ochrona:nie
 
Powierzchnia dodatkowa:
Balkon:nie
Komórka/Piwnica:nie
Loggia:nie
 
Numer oferty:
CRM:34964535885

Pokaż więcejmniej  

Tagi

Masz pytania? Napisz!

Przepisz kod captcha:

Polecamy podobne oferty

Zapisz się na powiadomienia o podobnych ofertach

Przepisz kod captcha:

Zaktualizowaliśmy naszą Politykę Prywatności.

Nowe zapisy w Polityce Prywatności wynikają z konieczności dostosowania naszych działań oraz dokumentacji do nowych wymagań europejskiego Rozporządzenia o Ochronie Danych Osobowych (RODO), które jest stosowane od 25 maja 2018 r.

Zaawansowane