Mieszkanie 5 pokojowe na Sprzedaż

5 pokoje 85.35m²
MAZOWIECKIE wołomiński ul. gen. Józefa Hallera

853 500 PLN

Nowoczesny i energooszczędny apartament z ogrodem 85.35 m²

853 500 PLN Negocjuj cenę >

MAZOWIECKIE wołomiński ul. gen. Józefa Hallera MAPA

1/20

853 500 PLN WYŁĄCZNOŚĆ   

Prezentujemy Państwu wyjątkową ofertę sprzedaży bezczynszowego lokalu mieszkalnego o powierzchni 85,35 m2, stanowiącego idealne połączenie przestrzeni domu jednorodzinnego z wygodą mieszkania. Nieruchomość usytuowana jest na piętrze nowoczesnego, dwulokalowego budynku w zabudowie bliźniaczej, co gwarantuje kameralność i poczucie prywatności.
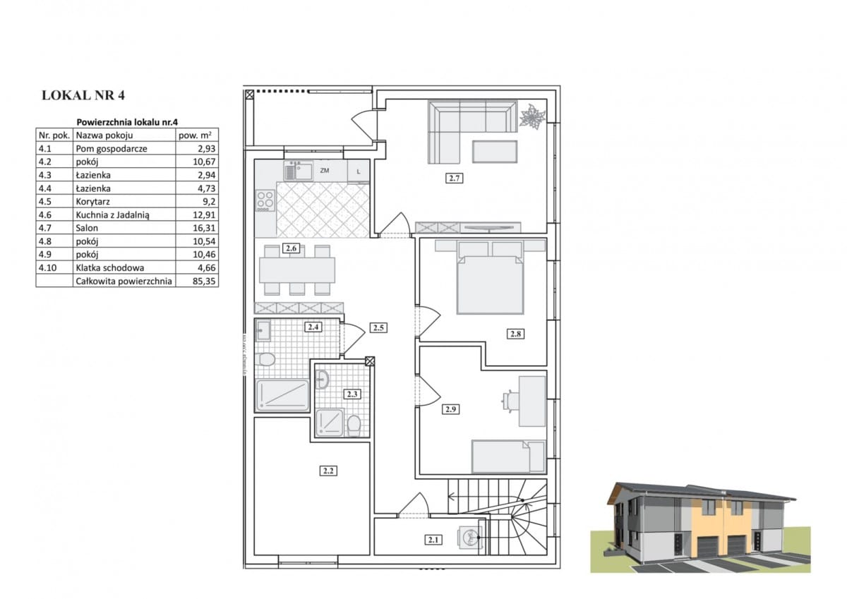
O nieruchomościLokal został zaprojektowany z myślą o maksymalnym wykorzystaniu przestrzeni i komforcie domowników. Wnętrze składa się z pięciu ustawnych pokoi, w tym przestronnego salonu oraz oddzielnej kuchni z jadalnią, która z pewnością stanie się sercem domu. Do mieszkania przynależy prywatny ogródek o powierzchni 32 m2 oraz 2 dedykowane miejsca postojowe bezpośrednio przed budynkiem.
Standard techniczny i energooszczędność
To, co wyróżnia tę nieruchomość na tle konkurencji, to bezkompromisowe podejście do jakości materiałów i technologii grzewczych. Budynek został wzniesiony z bloczków silikatowych i ocieplony grafitowym styropianem Swisspor o doskonałym współczynniku przenikania ciepła (0,031 W/mK).
Kluczowe rozwiązania technologiczne:

System rekuperacji: Zapewnia stały dopływ świeżego, przefiltrowanego powietrza bez strat ciepła typowych dla wentylacji grawitacyjnej.
Ogrzewanie podłogowe: Zamontowane we wszystkich pomieszczeniach, zasilane nowoczesnym piecem kondensacyjnym marki Vaillant (sprawność do 98%).
Izolacja termiczna: 30 cm wełny mineralnej Rockwool na dachu oraz trzyszybowe pakiety okienne zapewniają doskonały mikroklimat.
Gotowość na fotowoltaikę: Wymiennik CWU wyposażony w grzałkę umożliwia łatwe podłączenie paneli, co pozwala na uzyskanie niemal darmowej ciepłej wody.
Niskie koszty utrzymania: Wskaźnik zapotrzebowania na energię pierwotną (EP) wynosi zaledwie 69 kWh/m2rok.

Lokalizacja
Nieruchomość znajduje się w lokalizacji, która zadowoli najbardziej wymagających klientów:

Bliskość natury: Zaledwie 4 minuty spacerem dzielą Państwa od lasu, co sprzyja aktywne wypoczynkowi.
Infrastruktura miejska: Przedszkole w odległości 250 m, szkoła podstawowa oraz Centrum Handlowe Prima Park oddalone o 1,3 km.
Szybki dojazd: Zaledwie 4 minuty jazdy samochodem do granicy Warszawy oraz Centrum Handlowego M1.

Atuty oferty

Duży metraż (85,35 m2) z funkcjonalnym układem 5 pokoi.
Własny ogródek oraz 2 miejsca parkingowe w cenie.
Wyjątkowo niskie koszty eksploatacji dzięki nowoczesnym technologiom.
Podłączony światłowód.
Bezpieczna i cicha okolica w sąsiedztwie nowej zabudowy.


Ta oferta to idealna propozycja dla rodziny szukającej nowoczesnego domu, który nie generuje wysokich kosztów utrzymania, a jednocześnie pozwala pozostać w bliskim kontakcie z miastem. Zapraszam na prezentacje.



Pokaż więcejmniej  

 
Ogólne warunki:
Cena:853 500 PLN
Waluta:PLN
Liczba pokoi:5
Powierzchnia:85.35 m²
Cena za m2:10 000 PLN
Rynek:Wtórny
Stan prawny:
 
Opis budynku:
Rok budowy:2025
Liczba pięter:1
Piętro:1
Stan budynku:do wykończenia
Winda:nie
 
Standard mieszkania:
Stan nieruchomości:do wykończenia
 
Powierzchnia dodatkowa:
Balkon:tak
Komórka/Piwnica:nie
Loggia:nie
Ogródek:tak
Schowek:nie
Taras:nie
 
Bezpieczeństwo:
Monitoring:nie
Ochrona:nie
Teren ogrodzony:nie
 
Numer oferty:
CRM:34964548456

Pokaż więcejmniej  

Tagi

Masz pytania? Napisz!

Przepisz kod captcha:

Polecamy podobne oferty

Zapisz się na powiadomienia o podobnych ofertach

Przepisz kod captcha:

Zaktualizowaliśmy naszą Politykę Prywatności.

Nowe zapisy w Polityce Prywatności wynikają z konieczności dostosowania naszych działań oraz dokumentacji do nowych wymagań europejskiego Rozporządzenia o Ochronie Danych Osobowych (RODO), które jest stosowane od 25 maja 2018 r.

Zaawansowane