Mieszkanie 2 pokojowe na Sprzedaż

2 pokoje 62.55m²
MAZOWIECKIE piaseczyński Grapa ul. Jana Sobieskiego

890 000 PLN

Wysoki, wygodny parter. Piękna weranda. Willa. 62.55 m²

890 000 PLN Negocjuj cenę >

MAZOWIECKIE piaseczyński Grapa ul. Jana Sobieskiego MAPA

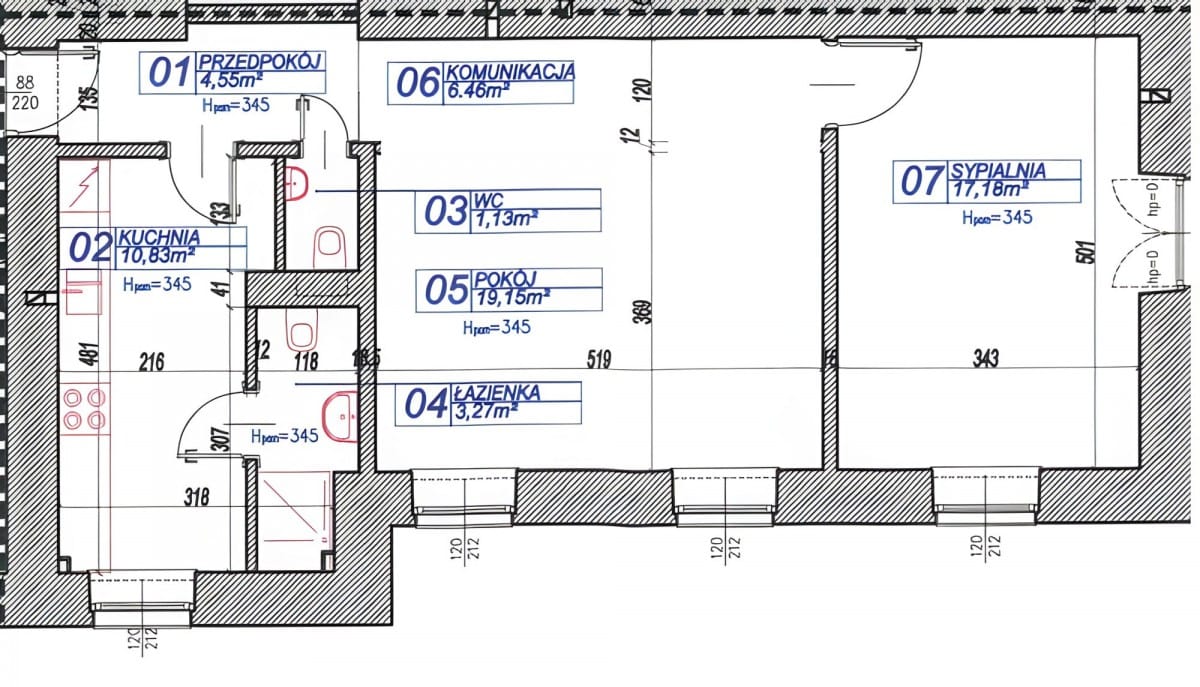
1/20

890 000 PLN WYŁĄCZNOŚĆ   

Wyjątkowe mieszkanie w historycznej Willi Quo Vadis 

LOKALIZACJA:

Konstancin-Jeziorna to miejsce dla osób, które cenią spokój, zieleń i architekturę z klasą. Miasto-ogród o niepowtarzalnym charakterze, znane z pięknych willi, uzdrowiskowego klimatu i wyjątkowej atmosfery, od lat przyciąga tych, którzy szukają czegoś więcej niż tylko dobrego adresu. W pobliżu znajdują się m.in. Park Zdrojowy, tężnia solankowa, tereny rekreacyjne, restauracje, kawiarnie, Stara Papiernia oraz pełna zieleni zabudowa willowa, tworzące komfortowe i prestiżowe miejsce do życia.

 

BUDYNEK:


Właśnie tutaj znajduje się Willa Quo Vadis — wyjątkowy budynek z 1905 roku, będący częścią historii dawnego Konstancina. To propozycja dla konesera architektury, który potrafi docenić autentyczność, detal i ponadczasowy charakter. Budynek zachwyca elementami, które dziś są już rzadkością: snycerskimi zdobieniami, ażurowymi balustradami oraz charakterystycznymi werandami. To nieruchomość z prawdziwą tożsamością — niepowtarzalna, elegancka i osadzona w historii miejsca.

 

MIESZKANIE:


Sam lokal jest przygotowany do wykończenia, co daje przyszłemu właścicielowi możliwość stworzenia wnętrza zgodnego z własną wizją, przy jednoczesnym wykorzystaniu już wykonanych prac technicznych. Wykonano m.in. kotłownię gazową i montaż instalacji wewnętrznej gazu, nowy piec i nową skrzynkę gazową, instalację wodno-kanalizacyjną, przygotowane przyłącza do kuchni, WC i łazienki, podłączenie wentylacji, rozdzielenie instalacji elektrycznej, dodatkowe obwody dla lodówki, piekarnika i zmywarki. 

Dodatkowym atutem jest nabycie wraz z lokalem udziału 1/16 w gruncie o powierzchni 3139 m². Wizualizacje zamieszczone w galerii po rzucie uwzględniają rzeczywisty układ instalacji w lokalu.

Serdecznie zapraszam na prezentację tej wyjątkowej nieruchomości. To oferta dla osób, które w nieruchomości szukają nie tylko funkcji, ale również klimatu, historii i wartości, która nie przemija.



Pokaż więcejmniej  

 
Ogólne warunki:
Cena:890 000 PLN
Waluta:PLN
Liczba pokoi:2
Powierzchnia:62.55 m²
Cena za m2:14 229 PLN
Rynek:Wtórny
 
Opis budynku:
Rodzaj budynku:Willa
Rok budowy:1905
Liczba pięter:3
Stan budynku:surowy zamknięty
Winda:nie
 
Standard mieszkania:
Stan nieruchomości:surowy zamknięty
Rodzaj ogrzewania:Gazowe
 
Pomieszczenia i pokoje:
Typ kuchni:Zamykana z oknem
 
Powierzchnia dodatkowa:
Balkon:nie
Komórka/Piwnica:nie
Loggia:nie
Ogródek:tak
Schowek:nie
Taras:tak
 
Bezpieczeństwo:
Monitoring:nie
Ochrona:nie
Teren ogrodzony:tak
 
Numer oferty:
CRM:34964546726

Pokaż więcejmniej  

Tagi

Masz pytania? Napisz!

Przepisz kod captcha:

Polecamy podobne oferty

Zapisz się na powiadomienia o podobnych ofertach

Przepisz kod captcha:

Zaktualizowaliśmy naszą Politykę Prywatności.

Nowe zapisy w Polityce Prywatności wynikają z konieczności dostosowania naszych działań oraz dokumentacji do nowych wymagań europejskiego Rozporządzenia o Ochronie Danych Osobowych (RODO), które jest stosowane od 25 maja 2018 r.

Zaawansowane