Mieszkanie 2 pokojowe na Sprzedaż

2 pokoje 37.8m²
MAZOWIECKIE Warszawa Wola Nowolipki ul. Smocza

739 000 PLN

Mieszkanie na sprzedaż 2 pokoje Smocza, Warszawa 37.8 m²

739 000 PLN Negocjuj cenę >

MAZOWIECKIE Warszawa Wola Nowolipki ul. Smocza MAPA

1/16

739 000 PLN WYŁĄCZNOŚĆ   

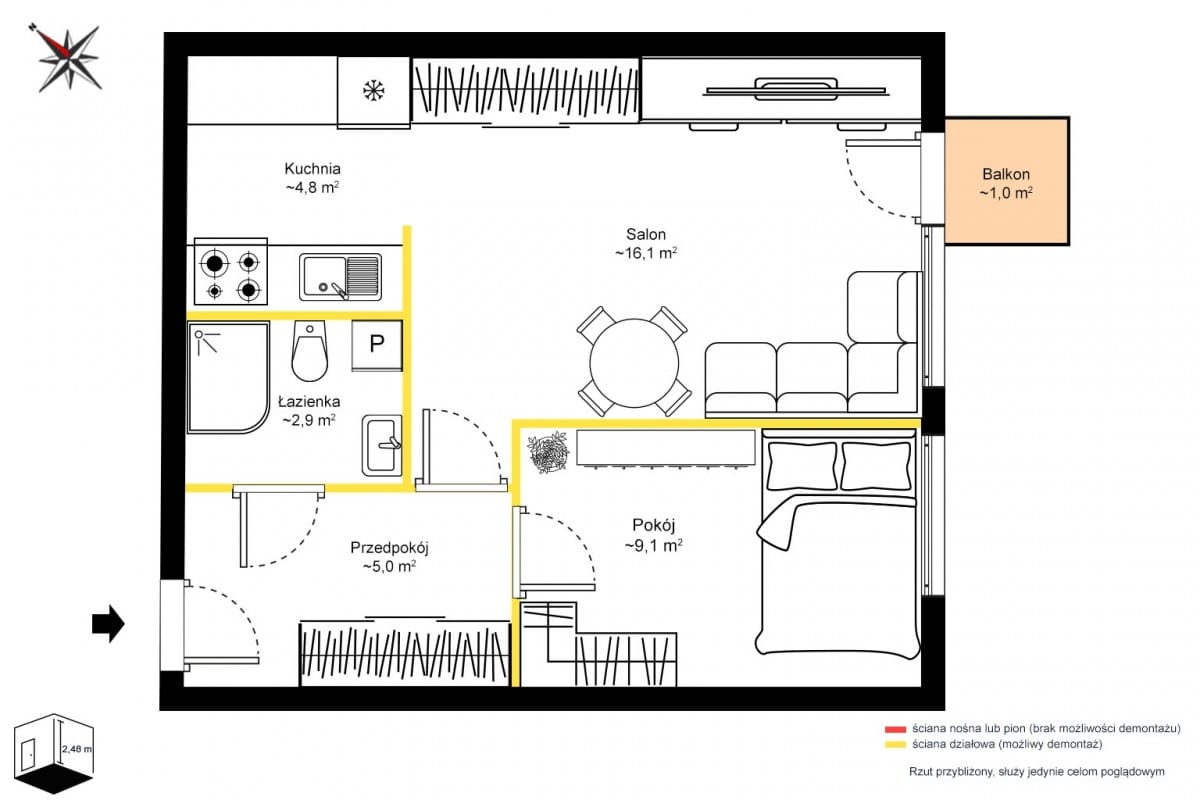
Na sprzedaż dwupokojowe mieszkanie o powierzchni użytkowej 37,80 mkw, usytuowane na szóstym piętrze w zadbanym budynku oddanym do użytku w latach siedemdziesiątych, który przeszedł liczne modernizacje w tym m.in: ocieplenie, wymianę elektryki, wind.
Dokładna lokalizacja to ulica Smocza 20 (druga linia zabudowy, co zapewnia większy spokój i ograniczenie hałasu z ulicy) czyli warszawskie pogranicze Woli i Śródmieścia.

Obecny rozkład lokalu to:


  • serce mieszkania, czyli ustawny pokój dzienny o pow. ok. 16,10 mkw, z którego prowadzi wyjście na balkon o pow. ok. 1 mkw,

  • umeblowana i wyposażona kuchnia otwarta na pokój dzienny o pow. ok. 4,8 mkw,

  • oddzielna sypialnia z wydzieloną częścią do pracy o pow. ok. 9,10 mkw,

  • łazienka z wc, umywalką i kabiną prysznicową o pow. ok. 2,9 mkw,

  • przedpokój w którym zainstalowano głęboką i pojemną szafę o pow. ok. 5 mkw


Olbrzymią wartością dodaną jest piwnica do wyłącznego korzystania o pow. ok. 3 mkw
Wysokość pomieszczeń to 2,48 m.

Jednym z atutów lokalu jest pożądana, wschodnia ekspozycja okien, zapewniająca dostęp do porannego światła przy jednoczesnym ograniczeniu nagrzewania wnętrz w ciągu dnia. Mieszkanie jest bardzo ciepłe i komfortowe również zimą - temperatura utrzymuje się na poziomie około 22-23°C, co w praktyce minimalizuje potrzebę korzystania z grzejników w sezonie grzewczym. Dodatkowym udogodnieniem jest zainstalowana w lokalu wysokiej klasy klimatyzacja, stanowiąca opcjonalne wsparcie komfortu w skrajnych warunkach pogodowych

Warto podkreślić, że mieszkanie jest zadbane, regularnie odświeżane i utrzymywane w bardzo dobrym stanie. Nigdy nie było wynajmowane, a właściciel przykłada dużą wagę do porządku i detali, w tym nowoczesnych rozwiązań takich jak włączniki światła przystosowane do systemu inteligentnego domu oraz monitoring przed wejściem do mieszkania. Lokal nadaje się do natychmiastowego zamieszkania po odbiorze kluczy lub jako gotowa inwestycja pod najem.

Jednym z największych atutów nieruchomości jest jej fenomenalna lokalizacja.

W bezpośrednim sąsiedztwie budynku przyszły właściciel lub najemca ma dostęp do pełnej infrastruktury handlowo-usługowej i gastronomicznej, w tym dobrze zaopatrzonych delikatesów, bankomatu oraz paczkomatów. Zarówno InPost, jak i One Box znajdują się tuż pod budynkiem na tyle blisko, że po odbiór przesyłki można zejść dosłownie w kapciach. Na większe zakupy, w szczególności odzieżowe, zaprasza galeria handlowa Klif oddalona o około 8 minut spacerem od wyjścia z budynku, a także kompleks Westfield Arkadia, do którego można dotrzeć w zaledwie kilka minut tramwajem (2-3 przystanki).

Sprawną i szybką komunikację z centrum miasta oraz pozostałymi dzielnicami zapewniają tramwaje, a najbliższy przystanek znajduje się tylko 3 minuty spacerem od budynku. Dodatkowo po ulicy Smoczej i przede wszystkim po sąsiadujących ulicach (Anielewicza i Aleja Jana Pawła II) kursują autobusy.

W zależności od środka transportu i pory dnia do najbliższej stacji pierwszej linii metra (Ratusz Arsenał) lub drugiej stacji linii metra (Rondo ONZ) dojazd zajmuje zazwyczaj od 3 do 15 minut.

Mimo bliskości ścisłego centrum miasta jest to miejsce oferujące poczucie spokoju i codzienny kontakt z zielenią. Zadrzewione, kameralne podwórza sprzyjają wyciszeniu i odpoczynkowi, a w odległości kilku minut spacerem znajdują się dwa popularne publiczne skwery oraz ogród Krasińskich (do 12 minut spacerem), dające możliwość aktywnego spędzania czasu na świeżym powietrzu, także z czworonogiem.

Oferta skierowana jest do osób poszukujących mieszkania gotowego do zamieszkania, bez konieczności ponoszenia dodatkowych nakładów finansowych i czasowych związanych z remontem. Lokal będzie odpowiedni zarówno dla osób planujących zakup pierwszego mieszkania, jak i dla tych, którzy rozważają zmianę dotychczasowego miejsca zamieszkania na bardziej komfortowe i funkcjonalne.
Oferta stanowi również atrakcyjną propozycję dla osób poszukujących stabilnej i bezpiecznej formy ulokowania kapitału w cenionej warszawskiej lokalizacji, cieszącej się stałym zainteresowaniem na rynku najmu długoterminowego

Czy brzmi to dla Ciebie interesująco? Jeśli tak, to nie czekaj tylko już dziś zadzwoń i przekonaj się czy oferowane mieszkanie jest odpowiednie dla Ciebie.


Informacja związana z ustawą o charakterystyce świadectw energetycznych.
W trakcie czynności wyrabiania świadectwa charakterystyki energetycznej lokalu.


-
Wszelkie prawa zastrzeżone. Ogłoszenie nie stanowi oferty w rozumieniu kodeksu cywilnego.



Pokaż więcejmniej  

 
Ogólne warunki:
Cena:739 000 PLN
Waluta:PLN
Liczba pokoi:2
Powierzchnia:37.8 m²
Cena za m2:19 550 PLN
Czynsz administracyjny:608 zł
Rynek:Wtórny
 
Opis budynku:
Rodzaj budynku:Blok mieszkalny
Rok budowy:1969
Liczba pięter:10
Piętro:6
Stan budynku:bardzo dobry
Winda:tak
 
Standard mieszkania:
Stan nieruchomości:bardzo dobry
Rodzaj ogrzewania:CO miejskie
 
Pomieszczenia i pokoje:
Typ kuchni:Bez okna otwarta na salon
 
Powierzchnia dodatkowa:
Balkon:tak
Komórka/Piwnica:tak
Loggia:nie
Ogródek:nie
Schowek:nie
Taras:nie
 
Bezpieczeństwo:
Monitoring:nie
Ochrona:nie
Teren ogrodzony:nie
 
Numer oferty:
CRM:34964541562

Pokaż więcejmniej  

Tagi

Karolina Grudzińska-Wolińska

Managerka Zespołu / Pośredniczka w Obrocie Nieruchomościami



Masz pytania? Napisz!

Przepisz kod captcha:

Polecamy podobne oferty

Zapisz się na powiadomienia o podobnych ofertach

Przepisz kod captcha:

Zaktualizowaliśmy naszą Politykę Prywatności.

Nowe zapisy w Polityce Prywatności wynikają z konieczności dostosowania naszych działań oraz dokumentacji do nowych wymagań europejskiego Rozporządzenia o Ochronie Danych Osobowych (RODO), które jest stosowane od 25 maja 2018 r.

Zaawansowane