Lokal użytkowy  pokojowe na Wynajem

20 pokoje 827m²
WIELKOPOLSKIE Poznań Nowe Miasto ul. Syrenia

30 000 PLN

Na wynajem 827 m2 powierzchni biurowych| PARKING 827 m²

30 000 PLN Negocjuj cenę >

WIELKOPOLSKIE Poznań Nowe Miasto ul. Syrenia MAPA

1/16

30 000 PLN WYŁĄCZNOŚĆ   

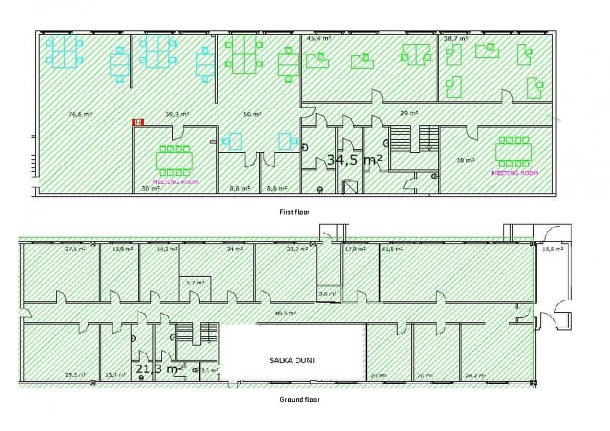
Zapraszam serdecznie do zapoznania się z ofertą powierzchni biurowych na wynajem o powierzchni całkowitej 827 m2 zlokalizowanych na dwóch poziomach przy ul. Syreniej 4 w Poznaniu. To doskonała lokalizacja dla działalności, która nie wymaga bezpośredniego adresu w centrum, ale zależy jej na dostępie do zasobów biznesowych miasta i potencjalnych klientów lub partnerów na obrzeżach centrum Poznania.

Ta oferta wynajmu to idealne rozwiązanie dla osób poszukujących przestronnych przestrzeni pod swój biznes, którzy nie chcą inwestować środków w zakup nieruchomości.

Nieruchomość jest w bardzo dobrym stanie technicznym, nie wymaga dodatkowych nakładów finansowych na remont. Przestrzenie biurowe są nieumeblowane co pozwala na ich własną aranżację. 

Na parterze znajduje się:

- 11 biur o różnej powierzchni 
- pomieszczenie socjalne
- łazienka damska i męska
- korytarz

Na piętrze znajdują się:

- 2 sale konferencyjne
- open space podzielony na 3 strefy
- 2 duże biura
- prysznic z szatnią
- łazienki damska i męska
- korytarz

Do dyspozycji najemcy jest również duży parking przy wejściu do budynku, który pomieści nawet 35 samochodów. Istnieje również możliwość wynajęcia przestrzeni magazynowych na terenie obiektu. Dodatkowym atutem jest kantyna pracownicza zlokalizowana tuż obok oferowanych biur na wynajem.


Warunki wynajmu:

- minimalny czas trwania umowy: 12 miesięcy
- kaucja: 30000 zł
- czynsz najmu: 30000 zł/ miesiąc, w cenie sprzątanie biur 2 razy w tygodniu
- opłaty: prąd, woda i ogrzewanie wg odczytu z podliczników

Zapraszam serdecznie na prezentację!



Pokaż więcejmniej  

 
Ogólne warunki:
Rynek:Wtórny
Cena:30 000 PLN
Waluta:PLN
Powierzchnia:827 m²
Cena za m2:36 PLN
Stan nieruchomości:
Piętro:1
 
Opis budynku:
Stan budynku:bardzo dobry
Liczba pięter:1
Winda:nie
 
Bezpieczeństwo:
Monitoring:nie
Ochrona:nie
 
Powierzchnia dodatkowa:
Balkon:nie
Komórka/Piwnica:nie
Loggia:nie
 
Numer oferty:
CRM:34964546625

Pokaż więcejmniej  

Tagi

Masz pytania? Napisz!

Przepisz kod captcha:

Polecamy podobne oferty

Zapisz się na powiadomienia o podobnych ofertach

Przepisz kod captcha:

Zaktualizowaliśmy naszą Politykę Prywatności.

Nowe zapisy w Polityce Prywatności wynikają z konieczności dostosowania naszych działań oraz dokumentacji do nowych wymagań europejskiego Rozporządzenia o Ochronie Danych Osobowych (RODO), które jest stosowane od 25 maja 2018 r.

Zaawansowane