pokojowe na Wynajem

pokoje 1136.3m²
Mazowieckie Warszawa Białołęka Modlińska

62 500 PLN

Zobacz>>>Nowoczesny budynek usługowy 1136.3 m²

62 500 PLN Negocjuj cenę >

Mazowieckie Warszawa Białołęka Modlińska MAPA

Zobacz tę nieruchomość nie wychodząc z domu
1/16

62 500 PLN

  video

Szukasz przestronnego, nowoczesnego obiektu w doskonałej lokalizacji, idealnego na działalność edukacyjną, medyczną lub komercyjną. Nieruchomość przy ul. Modlińskiej  to propozycja, która łączy funkcjonalność z prestiżem.

Nowoczesny budynek
Budynek o łącznej powierzchni 1136,3 m² położony na działce o powierzchni 1693 m², został zaprojektowany z myślą o szerokim spektrum zastosowań. Trzy kondygnacje z windą i wysokie pomieszczenia (3,45 m) dają możliwość swobodnej aranżacji wnętrz, dostosowanych do indywidualnych potrzeb najemców.

Lokalizacja i widoczność
Nieruchomość znajduje się w drugiej linii zabudowy przy ul. Modlińskiej głównej arterii Białołęki, co gwarantuje doskonałą komunikację oraz łatwy dojazd samochodem, jak i komunikacją miejską. Zaledwie 3 minuty spacerem dzielą go od najbliższego przystanku autobusowego, a do centrum handlowego Galeria Północna można dojechać w kilka minut. Bliskość Urzędu Dzielnicy Białołęka czyni tę nieruchomość atrakcyjną również dla firm współpracujących z administracją lokalną.

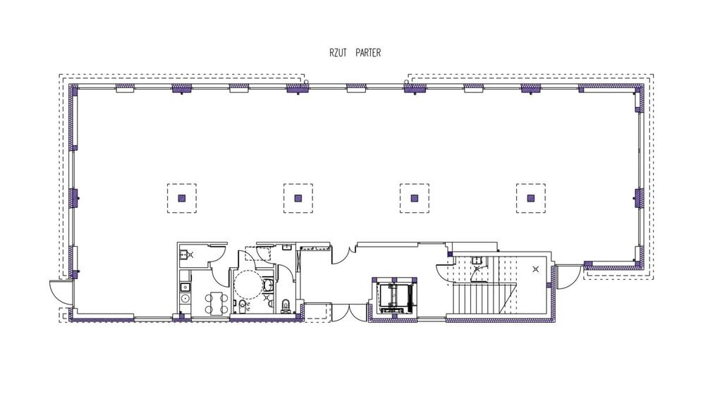
Przestrzeń i rozkład pomieszczeń
Powierzchnia użytkowa 782,62 m² rozłożona na trzy kondygnacje:
Parter otwarta przestrzeń biurowa, toalety, pomieszczenia socjalne oraz techniczne.
I piętro przestronne biura open space, toalety oraz wentylatornia.
II piętro
biura open space, kotłownia oraz zaplecze socjalne.

Nowoczesne rozwiązania techniczne
Budynek został wyposażony w nowoczesne instalacje:
Ogrzewanie: dwa gazowe kotły kondensacyjne o mocy 85 kW oraz system ogrzewania wodnego z grzejnikami płytowymi.
Instalacja elektryczna: zasilanie 400/230V, moc przyłączeniowa 92 kW, zabezpieczenie 160A.
Instalacja wodno-kanalizacyjna: odpływ do zewnętrznej kanalizacji oraz instalacje wodne z rur PE-Xc/AL/PE.

Bezpieczeństwo i udogodnienia
Budynek oferuje 20 miejsc parkingowych, w tym jedno przeznaczone dla osób niepełnosprawnych. Zlokalizowany jest w strategicznej części Białołęki, to doskonała propozycja dla firm szukających prestiżowej siedziby lub instytucji usługowych.

Dodatkowe Opłaty:
Media - wg wskazania liczników
Kaucja -67000 zł.


Zapraszamy do kontaktu i umówienia się na prezentację nieruchomości!






Pokaż więcejmniej  

 
Ogólne warunki:
Cena:62 500 PLN
Waluta:PLN
Powierzchnia:1136.3 m²
Cena za m2:59 PLN
Rynek:Pierwotny
Stan prawny:Własność
 
Opis budynku:
Rodzaj budynku:Apartamentowo-biurowy
Rok budowy:2024
Liczba pięter:2
Stan budynku:Idealny
Winda:nie
 
Standard mieszkania:
Typ okien:PCV
Ciepła woda:Wodociąg miejski
Rodzaj ogrzewania:CO własne
 
Pomieszczenia i pokoje:
Umeblowanie:nie
 
Bezpieczeństwo:
Monitoring:nie
Ochrona:nie
Recepcja:nie
Teren ogrodzony:nie
 
Miejsce parkingowe:
Garaż/miejsce parkingowe:tak
Liczba miejsc parkingowych naziemnych:20
 
Numer oferty:
CRM:22/2517/OOW

Pokaż więcejmniej  

Tagi

Aleh Tur

Pośrednik w Obrocie Nieruchomościami



Masz pytania? Napisz!

Polecamy podobne oferty

Zapisz się na powiadomienia o podobnych ofertach

Zaktualizowaliśmy naszą Politykę Prywatności.

Nowe zapisy w Polityce Prywatności wynikają z konieczności dostosowania naszych działań oraz dokumentacji do nowych wymagań europejskiego Rozporządzenia o Ochronie Danych Osobowych (RODO), które jest stosowane od 25 maja 2018 r.

Zaawansowane