Mieszkanie 4 pokojowe na Sprzedaż

4 pokoje 83.08m²
MAZOWIECKIE wołomiński ul. gen. Józefa Hallera

822 492 PLN

Bezczynszowe 83 m2 z garażem i prywatnym ogrodem 83.08 m²

822 492 PLN Negocjuj cenę >

MAZOWIECKIE wołomiński ul. gen. Józefa Hallera MAPA

1/19

822 492 PLN WYŁĄCZNOŚĆ   

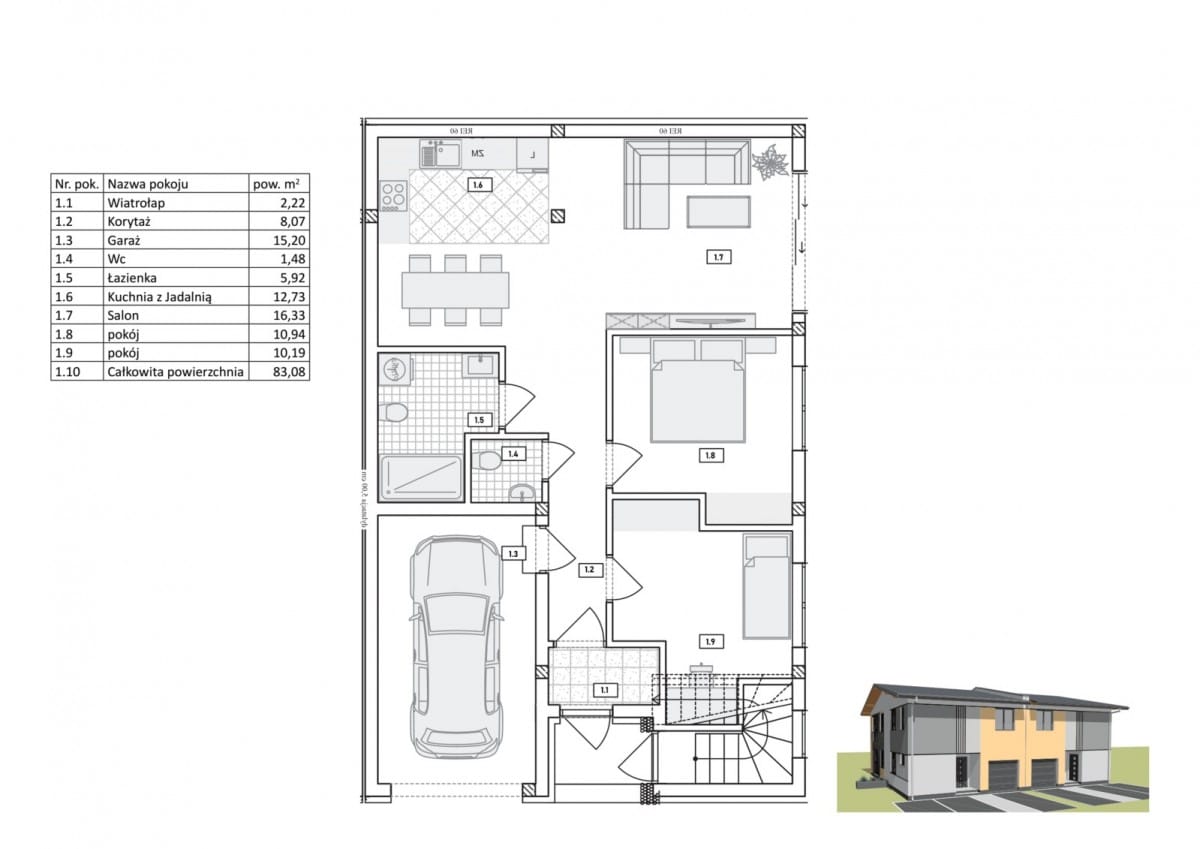
Zapraszamy do zapoznania się z ofertą nowoczesnego, bezczynszowego lokalu o powierzchni 83,08 m2, zlokalizowanego na parterze kameralnego, dwulokalowego budynku. Jest to idealna propozycja dla osób poszukujących funkcjonalności domu jednorodzinnego w cenie mieszkania.
Wnętrze charakteryzuje się logicznym i niezwykle wygodnym rozkładem pomieszczeń:

Strefa dzienna: Przestronny salon (16,33 m2) połączony z widną kuchnią i jadalnią (12,73 m2), co tworzy otwartą przestrzeń o powierzchni blisko 30 m2.
Strefa prywatna: Dwie ustawne sypialnie o powierzchniach 10,94 m2 oraz 10,19 m2, zapewniające spokój i intymność.
Zaplecze sanitarne: Duża, komfortowa łazienka (5,92 m2) oraz dodatkowe, oddzielne WC (1,48 m2), co jest ogromnym atutem przy kilku domownikach.
Komunikacja i logistyka: Funkcjonalny wiatrołap (2,22 m2) oraz korytarz (8,07 m2) z miejscem na pojemne szafy wnękowe.
Garaż: Ocieplony, zintegrowany z bryłą budynku (15,20 m2), z bezpośrednim wejściem do części mieszkalnej.

Technologia w służbie oszczędności
Nieruchomość została zaprojektowana z myślą o minimalizacji kosztów eksploatacji. Dzięki zastosowaniu bloczków silikatowych, izolacji grafitowym styropianem Swisspor oraz wełną mineralną Rockwool (30 cm na dachu), budynek cechuje się wybitną charakterystyką energetyczną (EP jedynie 69 kWh/m2rok).
Komfort codziennego życia podnoszą:

Rekuperacja: System wentylacji mechanicznej z odzyskiem ciepła i filtrowaniem powietrza.
Ogrzewanie podłogowe: Zasilane nowoczesnym piecem gazowym marki Vaillant.
Przygotowanie pod fotowoltaikę: Wymiennik CWU z grzałką umożliwia łatwe podłączenie paneli.

Lokalizacja i Ogród
Do mieszkania przynależy prywatny ogródek o powierzchni 61 m2 oraz dodatkowe miejsce postojowe przed budynkiem. Lokalizacja zapewnia błyskawiczny dostęp do Warszawy i centrum handlowego M1 (4 minuty autem), przy jednoczesnym sąsiedztwie lasu (4 minuty pieszo). W promieniu 1,3 km znajduje się pełna infrastruktura: szkoła, przedszkole oraz centrum handlowe Prima Park.
Atuty oferty

Brak czynszu i bardzo niskie koszty ogrzewania.
Oddzielne WC obok głównej łazienki - rzadkość w tym metrażu.
Bezpośrednie przejście z garażu do mieszkania.
Podłączony światłowód - idealny do pracy i rozrywki.
Doskonałe nasłonecznienie strefy dziennej dzięki dużym przeszkleniom.


To oferta dla osób, które nie chcą wybierać między miastem a naturą, a jednocześnie cenią sobie nowoczesne technologie budowlane. Zapraszam do kontaktu w celu umówienia spotkania i osobistej weryfikacji standardu tej inwestycji.



Pokaż więcejmniej  

 
Ogólne warunki:
Cena:822 492 PLN
Waluta:PLN
Liczba pokoi:4
Powierzchnia:83.08 m²
Cena za m2:9 900 PLN
Rynek:Wtórny
Stan prawny:
 
Opis budynku:
Rok budowy:2025
Liczba pięter:1
Stan budynku:do wykończenia
Winda:nie
 
Standard mieszkania:
Stan nieruchomości:do wykończenia
 
Powierzchnia dodatkowa:
Balkon:nie
Komórka/Piwnica:nie
Loggia:nie
Ogródek:tak
Schowek:nie
Taras:nie
 
Bezpieczeństwo:
Monitoring:nie
Ochrona:nie
Teren ogrodzony:nie
 
Numer oferty:
CRM:34964548451

Pokaż więcejmniej  

Tagi

Masz pytania? Napisz!

Przepisz kod captcha:

Polecamy podobne oferty

Zapisz się na powiadomienia o podobnych ofertach

Przepisz kod captcha:

Zaktualizowaliśmy naszą Politykę Prywatności.

Nowe zapisy w Polityce Prywatności wynikają z konieczności dostosowania naszych działań oraz dokumentacji do nowych wymagań europejskiego Rozporządzenia o Ochronie Danych Osobowych (RODO), które jest stosowane od 25 maja 2018 r.

Zaawansowane