Lokal użytkowy  pokojowe na Wynajem

11 pokoje 181.66m²
MAZOWIECKIE Warszawa Śródmieście Południowe ul. Wiejska

25 000 PLN

Lokal z wejściem od ulicy | Doskonała lokalizacja 181.66 m²

25 000 PLN Negocjuj cenę >

MAZOWIECKIE Warszawa Śródmieście Południowe ul. Wiejska MAPA

1/20

25 000 PLN WYŁĄCZNOŚĆ   

WYJĄTKOWA NIERUCHOMOŚĆ KOMERCYJNA W SERCU WARSZAWY Z WITRYNAMI 

Sąsiedztwo Placu Trzech Krzyży | Witryna od ulicy | Świetny dostęp do infrastruktury i komunikacji miejskiej 

*****

NIERUCHOMOŚĆ:

Prezentujemy unikatową ofertę wynajmu lokalu o powierzchni 181,66 m². Nieruchomość zlokalizowana jest w kultowej kamienicy z lat 30., w najbardziej prestiżowej części Śródmieścia, tuż obok Sejmu RP i Placu Trzech Krzyży.

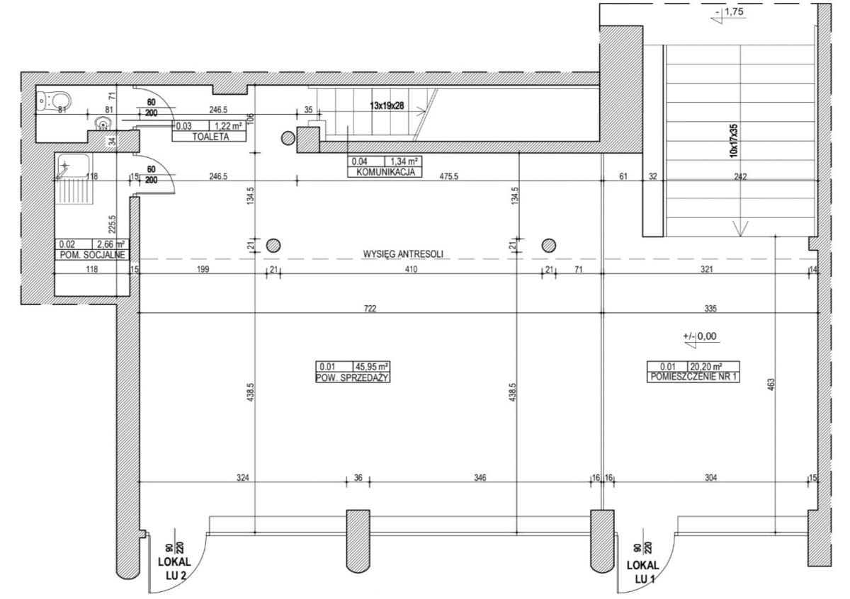
Lokal LU-1 (Parter z Witryną i Piwnica) - Powierzchnia 181,66 m²:
Lokal o unikalnym, loftowym charakterze, oferujący ogromne możliwości aranżacyjne.
Parter: Reprezentacyjne wejście i pomieszczenie o powierzchni 20,20 m².
Poziom -1 (Piwnica użytkowa): Imponująca przestrzeń o łącznej powierzchni 161,46 m². Składa się z 10 pomieszczeń, w tym dwóch dużych sal o charakterze open-space (m.in. sala o pow. 76,59 m² oraz 37,95 m²).

To idealne miejsce na galerię sztuki, prestiżowe biuro projektowe lub showroom. Aktualnie klinika kosmetyczna. 

Wnętrze lokalu niedawno przeszło gruntowny remont - zainstalowano wszelkie instalacje niezbędne do prowadzenia działalności gospodarczej - klimatyzację, wentylację, instalacją elektryczno-alarmowa, oznaczono drogi ewakuacyjne.


BUDYNEK:

Kamienica została zaprojektowana przez arch. Wacława Wekera w stylu funkcjonalizmu z lat 30-tych. Budynek przy Wiejskiej wzniesiono w latach 1935-1939. Elewacje oraz klatki schodowe w kamienicy zostały oblicowane marmurem i ciosami piaskowca, natomiast konstrukcję budynku stanowi „szkielet żelbetowo-stalowy z wypełnieniem i omurowaniem słupów stalowych z cegły pełnej” (arch. Kubicki). Posadzki w budynku ceramiczne, w przestrzeni sklepowej oraz betonowe w piwnicy.


LOKALIZACJA:


Nieruchomość znajduje się w jednej z najbardziej znanych lokalizacji Warszawy - przy ul. Wiejskiej, w sąsiedztwie Sejmu, Kancelarii Prezydenta, placu Trzech Krzyży i wielu ambasad. Na tym obszarze mieści się wiele prestiżowych butików, pracowni, kultowych kawiarni i restauracji. 


Kwartał ulic przylega do ogromnych śródmiejskich terenów zieleni, m.in. Park Ujazdowski, Łazienki Królewskie, Agrykola, Ogród Botaniczny. 

Atutem lokalizacji jest znakomita komunikacja z Centrum Warszawy. Możliwy jest zarówno dogodny dojazd komunikacją miejską i samochodem. 


Zapraszam na prezentację!





Pokaż więcejmniej  

 
Ogólne warunki:
Rynek:Wtórny
Cena:25 000 PLN
Waluta:PLN
Powierzchnia:181.66 m²
Cena za m2:138 PLN
 
Opis budynku:
Rodzaj budynku:
Rok budowy:1946
Liczba pięter:4
Winda:nie
 
Bezpieczeństwo:
Monitoring:nie
Ochrona:nie
 
Powierzchnia dodatkowa:
Balkon:nie
Komórka/Piwnica:nie
Loggia:nie
 
Numer oferty:
CRM:34964544004

Pokaż więcejmniej  

Tagi

Masz pytania? Napisz!

Przepisz kod captcha:

Polecamy podobne oferty

Zapisz się na powiadomienia o podobnych ofertach

Przepisz kod captcha:

Zaktualizowaliśmy naszą Politykę Prywatności.

Nowe zapisy w Polityce Prywatności wynikają z konieczności dostosowania naszych działań oraz dokumentacji do nowych wymagań europejskiego Rozporządzenia o Ochronie Danych Osobowych (RODO), które jest stosowane od 25 maja 2018 r.

Zaawansowane