Mieszkanie 12 pokojowe na Sprzedaż

12 pokoje 234.58m²
MAZOWIECKIE Warszawa Żoliborz ul. Włościańska

2 580 000 PLN

10 już wynajętych pokoi | Metro Marymont |KW|Winda 234.58 m²

2 580 000 PLN Negocjuj cenę >

MAZOWIECKIE Warszawa Żoliborz ul. Włościańska MAPA

1/11

2 580 000 PLN WYŁĄCZNOŚĆ   

Wyłącznie u nas!

Istnieje możliwość rozdzielenia nieruchomości na 3 oddzielne lokale.


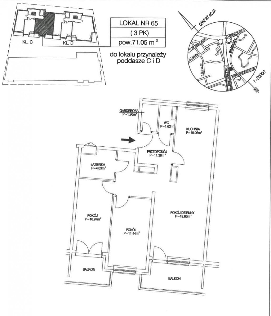
Wyjątkowa okazja - 234 m² - 10 pokoi - dwupoziomowy kompleks pokoi na wynajem przy ul. Włościańskiej 15 

Szukasz nieruchomości, która zarabia od pierwszego dnia i daje ogromny potencjał wzrostu po odświeżeniu?

To oferta, która na warszawskim rynku pojawia się ekstremalnie rzadko.

Co oferujemy?
Dwupoziomowe, 234-metrowe mieszkanie położone na 8. i 9. piętrze nowoczesnego budynku z 2009 roku — z windą.

Nieruchomość aktualnie funkcjonuje jak inwestycyjny kompleks najmu

10 osobnych pokoi
Pokoje mieszczą od 1 do 3 najemców jednocześnie — łącznie nieruchomość swobodnie pomieści nawet 16 najemców jednocześnie.

Układ idealny pod wynajem:
- 10 pokoi
- Kuchnia i jadalnia na dolnym poziomie
- 3 łazienki + 2 WC
- Część wspólna na piętrze
- 2 balkony (na niższym piętrze)

Mieszkanie jest do odświeżenia, ale dzięki temu masz pełną swobodę stworzenia swojej wizji: możesz podnieść standard pokoi, zwiększyć liczbę najemców, a tym samym zwiększyć rentowność.

Lokalizacja, która się wynajmuje sama:
ul. Włościańska 15 to świetnie skomunikowany punkt Warszawy — blisko metra, tramwajów, sklepów, uczelni i centrów biurowych.

Grupa docelowa: studenci, młodzi pracujący, single, pary, osoby wchodzące na rynek pracy.
Ten adres to gwarancja stałego popytu.

Formalności i opłaty:
Pełna własność z księgą wieczystą
Czynsz administracyjny: 4 086 zł
Budynek z 2009 roku z windą

Dlaczego warto?
- Unikalna skala - 234 m² w jednej księdze to rzadkość
- Gotowa struktura inwestycyjna - łatwy model zarabiania
- Możliwość pełnej przebudowy i personalizacji
- Nieruchomość może zarabiać od zaraz

Idealna przestrzeń na: mini akademik, coliving, dom pracowniczy lub inwestycję hybrydową

Jeśli szukasz nieruchomości, która daje więcej niż standardowe mieszkania inwestycyjne — trafiłeś idealnie.

Zadzwoń i umów się na prezentację.





Pokaż więcejmniej  

 
Ogólne warunki:
Cena:2 580 000 PLN
Waluta:PLN
Liczba pokoi:12
Powierzchnia:234.58 m²
Cena za m2:10 998 PLN
Czynsz administracyjny:4086 zł
Rynek:Wtórny
 
Opis budynku:
Rok budowy:2008
Liczba pięter:9
Piętro:9
Stan budynku:dobry
Winda:tak
 
Standard mieszkania:
Stan nieruchomości:dobry
 
Pomieszczenia i pokoje:
Typ kuchni:Z oknem
 
Powierzchnia dodatkowa:
Balkon:tak
Komórka/Piwnica:nie
Loggia:nie
Ogródek:nie
Schowek:nie
Taras:nie
 
Bezpieczeństwo:
Monitoring:nie
Ochrona:nie
Teren ogrodzony:nie
 
Numer oferty:
CRM:34964538758

Pokaż więcejmniej  

Tagi

Masz pytania? Napisz!

Przepisz kod captcha:

Polecamy podobne oferty

Zapisz się na powiadomienia o podobnych ofertach

Przepisz kod captcha:

Zaktualizowaliśmy naszą Politykę Prywatności.

Nowe zapisy w Polityce Prywatności wynikają z konieczności dostosowania naszych działań oraz dokumentacji do nowych wymagań europejskiego Rozporządzenia o Ochronie Danych Osobowych (RODO), które jest stosowane od 25 maja 2018 r.

Zaawansowane