Dom 4 pokojowe na Sprzedaż

4 pokoje 140m²
MAZOWIECKIE Warszawa

2 099 000 PLN

Bliźniak gotowy do zamieszkania 140 m²

2 099 000 PLN Negocjuj cenę >

MAZOWIECKIE Warszawa MAPA

1/17

2 099 000 PLN WYŁĄCZNOŚĆ   

Nieruchomość zdecydowanie warta uwagi!

Dom położony na dużej, narożnej działce, która zapewnia prywatność, spokój oraz brak bezpośrednich, uciążliwych sąsiadów. Dodatkowym atutem jest przestronny taras okalający dom z dwóch stron – idealne miejsce do wypoczynku.

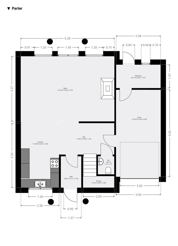
UKŁAD POMIESZCZEŃ
Parter:
  • hol
  • jasny salon z wyjściem na taras
  • otwarta, funkcjonalna kuchnia
  • WC
Piętro:
  • 3 sypialnie
Poddasze:
  • około 30 m² do własnej aranżacji (gabinet, pokój zabaw, dodatkowa sypialnia)
Salon i kuchnia są wyjątkowo dobrze doświetlone, dzięki dużym oknom wychodzącym na zachód.

STANDARD WYKOŃCZENIA
  • ogrzewanie podłogowe na całym parterze oraz w łazienkach
  • w pozostałych pomieszczeniach – grzejniki (piec gazowy, konwekcyjny)
  • drzwi wejściowe antywłamaniowe
  • dodatkowe zabezpieczenie na bramie garażowej
  • wyposażenie oraz zabudowa kuchni w cenie
GARAŻ I PARKING
  • garaż jednostanowiskowy z wejściem bezpośrednio do domu
  • dodatkowe miejsce parkingowe na zewnątrz
OSIEDLE:
Kameralne, zamknięte osiedle 8 bliźniaków, położone w Aleksandrowie, na terenie Mazowieckiego Parku Krajobrazowego.
  • 2 bramy wjazdowe – jedna prowadzi wprost do lasu (idealne miejsce na spacery i wybieganie dla psów)
  • aktywne stowarzyszenie mieszkańców
  • bardzo przyjazne, pomocne sąsiedztwo

Osiedle powstało w 2018 roku i zostało wybudowane przez znanego, cenionego inwestora – który sam tutaj zamieszkuje. To gwarancja jakości wykonania, co potwierdzają obecni mieszkańcy.
Dom zbudowany z czerwonej cegły, dach pokryty dachówką betonową, z pełnym systemem odprowadzenia deszczówki.

LOKALIZACJA
  • Aleksandrów, Mazowiecki Park Krajobrazowy
  • przystanek autobusowy ok. 200 m
  • kilka przystanków do SKM w Falenicy
  • 3 minuty samochodem do wjazdu na Południową Obwodnicę Warszawy

Lokalizacja zapewnia jednocześnie ciszę i świetną komunikację z Warszawą.





Pokaż więcejmniej  

 
Ogólne warunki:
Rynek:Wtórny
Cena:2 099 000 PLN
Waluta:PLN
Cena za m2:14 993 PLN
Liczba pokoi:4
 
Standard domu:
Rok budowy:2018
Liczba pięter:1
 
Bezpieczeństwo:
Monitoring:nie
Teren strzeżony:nie
 
Numer oferty:
CRM:34964536272

Pokaż więcejmniej  

Tagi

Karolina Grudzińska-Wolińska

Pośredniczka w Obrocie Nieruchomościami



Masz pytania? Napisz!

Przepisz kod captcha:

Polecamy podobne oferty

Zapisz się na powiadomienia o podobnych ofertach

Przepisz kod captcha:

Zaktualizowaliśmy naszą Politykę Prywatności.

Nowe zapisy w Polityce Prywatności wynikają z konieczności dostosowania naszych działań oraz dokumentacji do nowych wymagań europejskiego Rozporządzenia o Ochronie Danych Osobowych (RODO), które jest stosowane od 25 maja 2018 r.

Zaawansowane