Dom 8 pokojowe na Sprzedaż

8 pokoje 400.8m²
MAZOWIECKIE otwocki

5 288 000 PLN

Dom Józefów do wprowadzenia lux 400.8 m²

5 288 000 PLN Negocjuj cenę >

MAZOWIECKIE otwocki MAPA

1/24

5 288 000 PLN WYŁĄCZNOŚĆ   

Wyjątkowa Rezydencja w Józefowie Styl Południowej Francji Działka 2000 m² luksus

Opis nieruchomości: Prezentujemy niepowtarzalną rezydencję zlokalizowaną w jednej z najbardziej prestiżowych, cichych i zielonych części Józefowa. Nieruchomość położona jest na dużej, blisko 2000 m² działce, w bezpośrednim sąsiedztwie lasu i niskiej zabudowy jednorodzinnej, co gwarantuje prywatność, spokój i kontakt z naturą.

Dom inspirowany architekturą południowej Francji zachwyca jasnymi, przestronnymi wnętrzami, elegancją oraz najwyższej klasy materiałami wykończeniowymi i dekoracyjnymi. To nie tylko estetyka, ale również zaawansowana technologia — inteligentny system zarządzania domem dostępny z poziomu aplikacji.

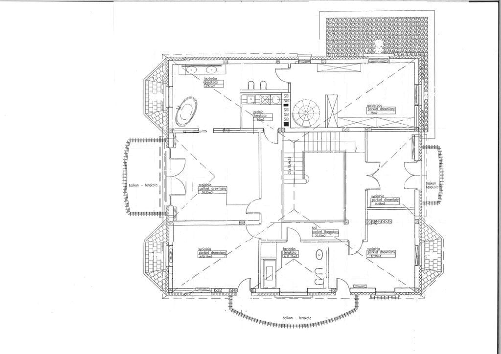
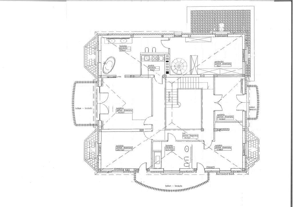
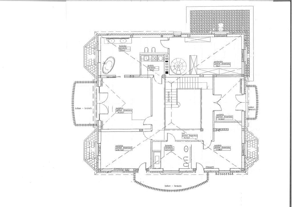
Rozkład pomieszczeń:
I kondygnacja – Parter:
  • Sień: 5,9 m² z szatnią: 4,08 m²
  • Hall: 17,16 m²
  • Kuchnia z aneksem śniadaniowym: 20 m², spiżarnia: 3,95 m²
  • Biblioteka: 19,6 m²
  • Jadalnia z wyjściem na ogród: 17,68 m²
  • Salon z kominkiem i wyjściem na taras i ogród: 33,08 m²
  • Gabinet z łazienką: 18,35 m² 6,18 m²
  • Pomieszczenie gospodarcze: 8,61 m²
  • Garaż dwustanowiskowy: 39,13 m²
Parter połączony z piętrem reprezentacyjnymi schodami w przestronnym hallu z antresolą.

II kondygnacja – Piętro:
  • Sypialnia 1: 20,11 m² z łazienką: 11,11 m²
  • Sypialnia 2: 17,58 m²
  • Sypialnia 3: 14,56 m²
  • Garderoba: 28 m²
  • Łazienka: 21 m²
  • Sypialnia 4 (główna): 26,52 m² z prywatnym tarasem, pokojem kąpielowym (wanna wolnostojąca na lwich łapach) i garderobą
  • Pralnia: 4,28 m²
  • Hall: 20,15 m²

Dodatkowo:
  • Dwie sypialnie z wyjściem na taras i łazienką
  • Pokój gościnny z balkonem

III kondygnacja – Poddasze:
Na poddasze prowadzą XIX-wieczne, żeliwne schody, nadające wyjątkowy charakter. Przestrzeń rekreacyjna oraz strefa zabaw dla dzieci — otwarta, wielofunkcyjna przestrzeń.

Wyposażenie i standard wykończenia:
Wysokiej jakości stolarka okienna i drzwiowa wykonywana na zamówienie
Kuchnia z wyposażeniem SMEG, granitowe blaty, bielone meble, cementowe płytki
Marmurowy, ręcznie wykonany portal kominka
Armatura marek: DEVON & DEVON, OLD ENGLAND, VILLEROY & BOCH
Podłogi: marmur Perlino Bianco, deski CHAPPEL na parterze, dębowe deski na piętrach
System rekuperacji (odzysk ciepła)
Filtry wodne

Inteligentny dom – zarządzanie oświetleniem, ogrzewaniem, bezpieczeństwem z poziomu aplikacji
System alarmowy, monitoring, zewnętrzne kamery, czujniki dymu
Automatyczne bramy garażowe i wjazdowe
System automatycznego koszenia trawy
System nawadniania ogrodu

Działka i ogród: Blisko 2000 m² działki harmonijnie wpisanej w naturalne, leśne otoczenie. Profesjonalnie zaprojektowany ogród zapewnia wyjątkowe poczucie przestrzeni i prywatności. Elegancki, murowany płot z kutymi przęsłami od frontu. Podjazd i dojście do domu wyłożone naturalnym granitem.

Lokalizacja:
  • Zaciszna, prestiżowa część Józefowa
  • Bezpośrednie sąsiedztwo lasu
  • Kameralna zabudowa jednorodzinna
  • Bliskość pełnej infrastruktury miejskiej


Oferta dostępna wyłącznie w naszym biurze.
Zapraszam do kontaktu i prezentacji tej niepowtarzalnej nieruchomości.







Pokaż więcejmniej  

 
Ogólne warunki:
Rynek:Wtórny
Cena:5 288 000 PLN
Waluta:PLN
Cena za m2:13 194 PLN
Liczba pokoi:8
 
Standard domu:
Rok budowy:2011
Liczba pięter:1
 
Bezpieczeństwo:
Monitoring:nie
Teren strzeżony:nie
 
Numer oferty:
CRM:34964500872

Pokaż więcejmniej  

Tagi

Masz pytania? Napisz!

Przepisz kod captcha:

Polecamy podobne oferty

Zapisz się na powiadomienia o podobnych ofertach

Przepisz kod captcha:

Zaktualizowaliśmy naszą Politykę Prywatności.

Nowe zapisy w Polityce Prywatności wynikają z konieczności dostosowania naszych działań oraz dokumentacji do nowych wymagań europejskiego Rozporządzenia o Ochronie Danych Osobowych (RODO), które jest stosowane od 25 maja 2018 r.

Zaawansowane