Dom 7 pokojowe na Sprzedaż

7 pokoje 266m²
MAZOWIECKIE Warszawa Wawer ul. Średnia

3 199 000 PLN

Dom z dwiema werandami na dużej działce 266 m²

3 199 000 PLN Negocjuj cenę >

MAZOWIECKIE Warszawa Wawer ul. Średnia MAPA

1/24

3 199 000 PLN WYŁĄCZNOŚĆ   

Na sprzedaż dom wolnostojący na pięknej, dużej działce w otoczeniu lasów w Warszawie.
Nieruchomość wybudowana w roku 2000, po gruntownym remoncie całego wnętrza w roku 2024/25, zaadoptowaniem poddasza oraz położeniem nowego tarasu z deski kompozytowej., instalacją bramy garażowej oraz wymianie pieca.
Dom idealny dla osób ceniących przestrzeń i naturę. Niestandardowy układ wnętrza oraz dwie werandy nadają domowi wyjątkowego charakteru.

Najważniejsze informacje:
  • powierzchnia użytkowa domu na parterze: 148,90m2, wysokość pomieszczeń 281cm
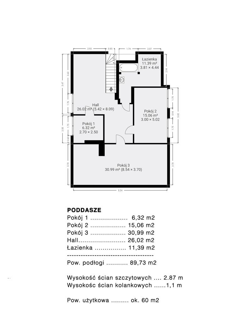
  • powierzchnia użytkowa piętra około 60m2, po podłodze 89,73m2
  • powierzchnia działki: 1647m2
  • garaż 1. stanowiskowy w bryle budynku
  • stan wykończenia: bardzo dobry
Układ pomieszczeń: PARTER 176,52m2
  • salon 32,58m2
  • kuchnia 15,78m2
  • pokój 14,63m2
  • pokój 15,78m2
  • weranda 14,25m2
  • weranda 27,32m2
  • hol 12,05m2
  • łazienka 9,93m2
  • hol 6,57m2
  • garaż 23,81m2
  • kotłownia 3,81m2
Układ pomieszczeń: PIĘTRO 89,73M2 (liczone po podłodze pomieszczeń)
  • pokój 15,06m2
  • pokój 6,32m2
  • schowek 30,99- po dodaniu okien połaciowych kolejny pokój
  • hol 26,02m2
  • łazienka
Standard i wyposażenie:
  • technologia budowy: tradycyjna, murowana, cegła
  • okna drewniane dwuszybowe oraz PCV
  • dach: blachodachówka
  • ogrzewanie tradycyjne: grzejniki
  • piec gazowy Brotje nowy na gwarancji
  • kanalizacja: szambo
  • woda ujęcie własne
  • instalacja alarmowa

Zapraszam na prezentację tej wyjątkowej nieruchomości oferowanej tylko w naszym biurze. Kupujący nie płaci prowizji.













































































































































































































































































































































































Pokaż więcejmniej  

 
Ogólne warunki:
Rynek:Wtórny
Cena:3 199 000 PLN
Waluta:PLN
Cena za m2:12 026 PLN
Liczba pokoi:7
 
Standard domu:
Rok budowy:2000
Liczba pięter:1
 
Bezpieczeństwo:
Monitoring:nie
Teren strzeżony:nie
 
Numer oferty:
CRM:34964550487

Pokaż więcejmniej  

Tagi

Karolina Grudzińska-Wolińska

Managerka Zespołu / Pośredniczka w Obrocie Nieruchomościami



Masz pytania? Napisz!

Przepisz kod captcha:

Polecamy podobne oferty

Zapisz się na powiadomienia o podobnych ofertach

Przepisz kod captcha:

Zaktualizowaliśmy naszą Politykę Prywatności.

Nowe zapisy w Polityce Prywatności wynikają z konieczności dostosowania naszych działań oraz dokumentacji do nowych wymagań europejskiego Rozporządzenia o Ochronie Danych Osobowych (RODO), które jest stosowane od 25 maja 2018 r.

Zaawansowane