Mieszkanie 3 pokojowe na Sprzedaż

3 pokoje 65.74m²
MAZOWIECKIE Warszawa Mokotów Ksawerów ul. Bukowińska

1 195 000 PLN

Dwustronne I osobna kuchnia I przy metrze 65.74 m²

1 195 000 PLN Negocjuj cenę >

MAZOWIECKIE Warszawa Mokotów Ksawerów ul. Bukowińska MAPA

1/16

1 195 000 PLN WYŁĄCZNOŚĆ   

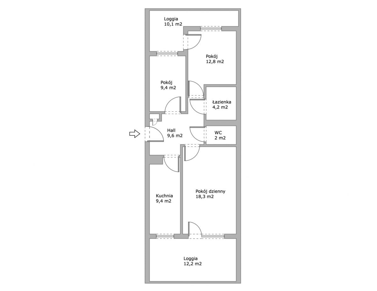
Oferuję na sprzedaż komfortowe, trzypokojowe mieszkanie o powierzchni 65,74 m², położone przy ulicy Bukowińskiej w dzielnicy Mokotów (Ksawerów). Lokal usytuowany jest na 1. piętrze w piętnastopiętrowym budynku z 2007 roku.

Najważniejsze atuty:



  • dwustronna ekspozycja - salon i kuchnia od strony południowej (widok na patio), sypialnie od strony północnej (widok na spokojną ulicę),

  • oddzielna, jasna kuchnia z nową zabudową oraz sprzętem AGD,

  • drewniana stolarka okienna,

  • funkcjonalny i dobrze rozplanowany układ pomieszczeń,

  • bezpośrednie położenie przy stacji metra Wilanowska i pętli autobusowej


W skład nieruchomości wchodzi:


  • salon,

  • dwie sypialnie,

  • kuchnia,

  • łazienka z prysznicem,

  • oddzielna toaleta,

  • taras o powierzchni 10,1 m²,

  • loggia o powierzchni 12,2 m²,

  • miejsce postojowe w garażu podziemnym (dodatkowo płatne 50 000 zł).


Lokalizacja:
W najbliższej okolicy znajdują się liczne restauracje, kawiarnie, sklepy, punkty usługowe, placówki edukacyjne oraz tereny zielone i rekreacyjne.

Komunikacja:
Nieruchomość jest bardzo dobrze skomunikowana. W pobliżu znajdują się przystanki autobusowe i tramwajowe oraz stacja metra Wilanowska, zapewniająca szybki dojazd do różnych części miasta. Dojazd do centrum Warszawy zajmuje około 10 minut komunikacją miejską, a sama stacja metra Wilanowska oddalona jest o niespełna 3 minuty spacerem.

Opłaty:
Czynsz administracyjny wynosi około 1100 zł.

Forma własności:
Pełna własność z księgą wieczystą - możliwość zakupu na kredyt.

Zapraszam na prezentację po wcześniejszym kontakcie telefonicznym lub mailowym.



Pokaż więcejmniej  

 
Ogólne warunki:
Cena:1 195 000 PLN
Waluta:PLN
Liczba pokoi:3
Powierzchnia:65.74 m²
Cena za m2:18 178 PLN
Czynsz administracyjny:1100 zł
Rynek:Wtórny
 
Opis budynku:
Rodzaj budynku:Apartamentowiec
Rok budowy:2007
Liczba pięter:15
Piętro:1
Stan budynku:bardzo dobry
Winda:tak
 
Standard mieszkania:
Stan nieruchomości:bardzo dobry
Rodzaj ogrzewania:CO miejskie
 
Pomieszczenia i pokoje:
Typ kuchni:Zamykana z oknem
 
Powierzchnia dodatkowa:
Balkon:tak
Komórka/Piwnica:nie
Loggia:tak
Ogródek:nie
Schowek:nie
Taras:tak
 
Bezpieczeństwo:
Monitoring:tak
Ochrona:nie
Teren ogrodzony:nie
 
Numer oferty:
CRM:34964550000

Pokaż więcejmniej  

Tagi

Roberto Sochaj

Pośrednik w Obrocie Nieruchomościami



Masz pytania? Napisz!

Przepisz kod captcha:

Polecamy podobne oferty

Zapisz się na powiadomienia o podobnych ofertach

Przepisz kod captcha:

Zaktualizowaliśmy naszą Politykę Prywatności.

Nowe zapisy w Polityce Prywatności wynikają z konieczności dostosowania naszych działań oraz dokumentacji do nowych wymagań europejskiego Rozporządzenia o Ochronie Danych Osobowych (RODO), które jest stosowane od 25 maja 2018 r.

Zaawansowane