Lokal użytkowy  pokojowe na Sprzedaż

15 pokoje 377m²
WIELKOPOLSKIE poznański ul. Graniczna

1 299 000 PLN

Nieruchomość pod biuro/usługi/gabinety/fitness 377 m²

1 299 000 PLN Negocjuj cenę >

WIELKOPOLSKIE poznański ul. Graniczna MAPA

1/13

1 299 000 PLN WYŁĄCZNOŚĆ   

Budynek inwestycyjny z ogromnym potencjałem | bezpośrednio przy S11

Na sprzedaż nowoczesny budynek w stanie surowym zamkniętym, który dzięki swojej konstrukcji, wysokości pomieszczeń i układowi pozwala na wielofunkcyjne wykorzystanie inwestycyjne:

- usługi (gabinety stomatologiczne, kliniki, beauty)
- handel (sklep spożywczy itp.)
- biuro/ IT
- hotel pracowniczy
- warsztat / mechanika samochodowa
- fitness
- welness

2 klatki schodowe i niezależne wejścia- możliwość podziału budynku na 2 lub 3 niezależne części

CENA: 1 245000 + 23% Vat

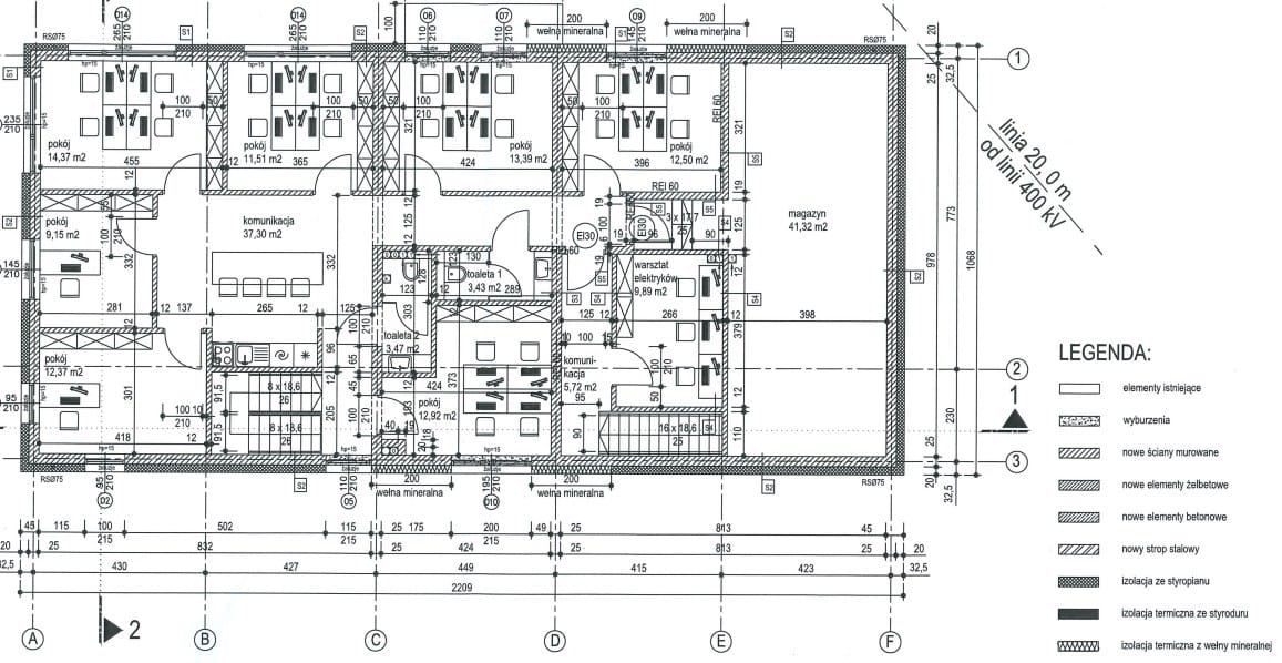
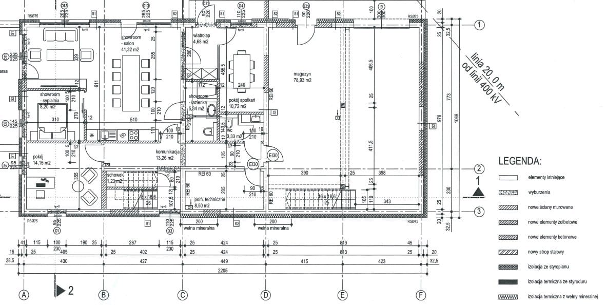
PARAMETRY:

- Działka: 1 250 m²
- Powierzchnia użytkowa: 377 m²
- Powierzchnia zabudowy: 235,92 m²
- Liczba kondygnacji: 2
- Magazyn w bryle budynku z bramą garażową

STAN OBECNY:

- stan surowy zamknięty
- wykończony dach + 2 świetliki
- wszystkie okna z żaluzjami fasadowymi
- wysokie stropy - możliwość wjazdu wysokich busów
- wszystkie ścianki działowe murowane
- 2x schody żelbetowe (wylane)
- zamontowana brama magazynowa
- 2 drzwi wejściowe z zamkami elektrycznymi (w cenie - do montażu końcowego)

MOŻLIWOŚCI ARANŻACYJNE

- showroom
- sale konferencyjne / szkoleniowe
- biura typu open space
- zaplecze magazynowe
- pokoje pracownicze

DODATKOWY ATUT

Bezpośrednio obok znajduje się działka na sprzedaż, co daje możliwość zwiększenia powierzchni parkingowej lub dalszej rozbudowy zaplecza - bardzo istotne przy działalności usługowej, medycznej czy hotelowej.

MEDIA

- prąd, woda, gaz - w działce
- kanalizacja - w drodze

LOKALIZACJA

- bardzo blisko trasy ekspresowej S11 - szybki dojazd
- spokojna, zaciszna okolica
- dogodny dojazd dla klientów, dostaw i transportu pracowniczego

Dlaczego warto?

uniwersalny obiekt inwestycyjny
możliwość podziału, wynajmu lub zmiany funkcji
dodatkowa działka zwiększająca potencjał parkingowy



Pokaż więcejmniej  

 
Ogólne warunki:
Rynek:Wtórny
Cena:1 299 000 PLN
Waluta:PLN
Powierzchnia:377 m²
Cena za m2:3 446 PLN
Stan nieruchomości:
 
Opis budynku:
Rok budowy:2022
Stan budynku:surowy zamknięty
Liczba pięter:1
Winda:nie
 
Bezpieczeństwo:
Monitoring:nie
Ochrona:nie
 
Powierzchnia dodatkowa:
Balkon:nie
Komórka/Piwnica:nie
Loggia:nie
 
Numer oferty:
CRM:34964541168

Pokaż więcejmniej  

Tagi

Masz pytania? Napisz!

Przepisz kod captcha:

Polecamy podobne oferty

Zapisz się na powiadomienia o podobnych ofertach

Przepisz kod captcha:

Zaktualizowaliśmy naszą Politykę Prywatności.

Nowe zapisy w Polityce Prywatności wynikają z konieczności dostosowania naszych działań oraz dokumentacji do nowych wymagań europejskiego Rozporządzenia o Ochronie Danych Osobowych (RODO), które jest stosowane od 25 maja 2018 r.

Zaawansowane