Mieszkanie 3 pokojowe na Sprzedaż

3 pokoje 66.38m²
Mazowieckie Warszawa Białołęka Strumykowa

879 000 PLN

Ogłoszenie archiwalne

Zobacz>>> 2 sypialnie +salon z kuchnią+garaż 66.38 m²

879 000 PLN Negocjuj cenę >

Mazowieckie Warszawa Białołęka Strumykowa MAPA

Zobacz tę nieruchomość nie wychodząc z domu
1/11

879 000 PLN WYŁĄCZNOŚĆ

  video

Przytulne mieszkanie - zlokalizowane na Białołęce przy ulicy Strumykowej 

Opis 
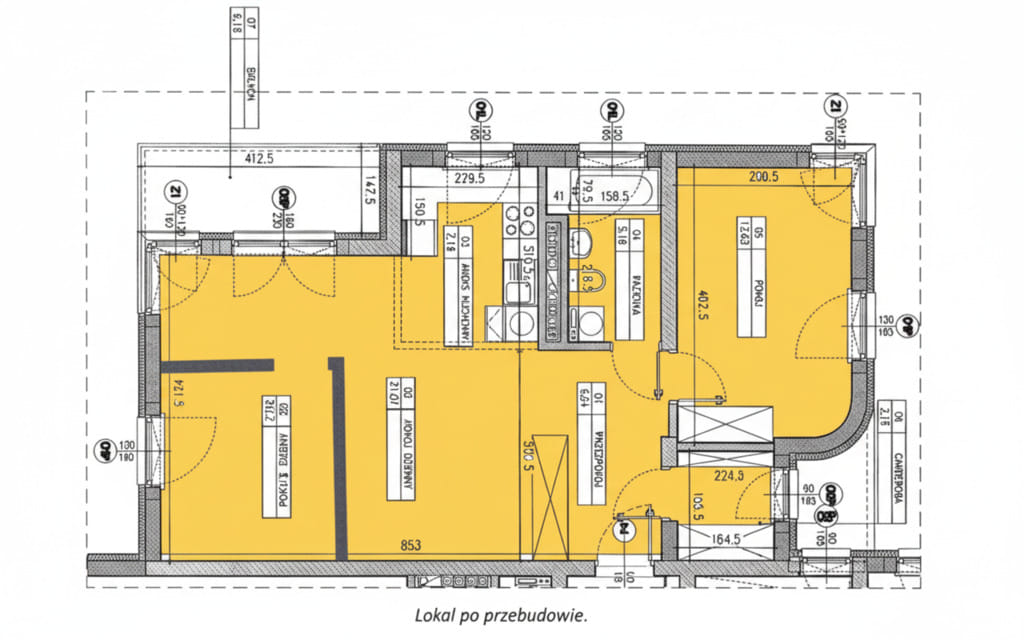
Nieruchomość o powierzchni 66,38 mkw w budynku z 2012 roku. Osiedle na zamkniętym terenie z ochroną. W okolicy niska zabudowa. Mieszkanie znajduje się na 2 pietrze w 4 piętrowym budynku bez windy. Ekspozycja okien na południowy zachód. Atutem nieruchomości są okna we wszystkich pomieszczeniach (dwie sypialnie, salon z aneksem kuchennym, garderoba, łazienka). Miejsce postojowe w garażu podziemnym za dodatkową opłatą. W nieruchomości jest zorganizowana część jadalniana z której jest wyjście na duży balkon.

Lokalizacja
Budynek jest dobrze skomunikowany dzięki pobliskim liniom autobusowym 509, 511, 516, 518, 723 i 731 oraz pętli tramwajowej Nowodwory z liniami 2 i 17, a w jej otoczeniu znajdują się sklepy takie jak Żabka i Delikatesy Beta, Szkoła Podstawowa nr 342 oraz przedszkole dwujęzyczne, co czyni tę lokalizację wygodną zarówno pod względem komunikacji, jak i codziennych udogodnień.

Tereny zielone
W pobliżu rozciągają się skwery i zadrzewione alejki osiedlowe, a niedaleko położony jest Park Picassa oraz nadwiślańskie tereny spacerowe z bulwarami i ścieżkami rowerowymi, co sprawia, że okolica sprzyja rekreacji, spacerom i aktywnemu wypoczynkowi na świeżym powietrzu.

Stan Prawny 
Pełna własność z Księgą Wieczystą - możliwy zakup na kredyt (pomagamy również w weryfikacji zdolności kredytowej)

Podsumowanie
- okna w każdym pomieszczeniu
- garaż za dodatkową opłatą 45 tys 
- garderoba 
- balkon
- teren strzeżony
- dużo terenów zielonych

Zapraszam już dziś na prezentację mieszkania 




Pokaż więcejmniej  

 
Ogólne warunki:
Cena:879 000 PLN
Waluta:PLN
Liczba pokoi:3
Powierzchnia:66.38 m²
Cena za m2:13 242 PLN
Czynsz administracyjny:1048 zł
Typ mieszkania:Rozkładowe
Rynek:Wtórny
Stan prawny:Własność
 
Opis budynku:
Rodzaj budynku:Blok mieszkalny
Rok budowy:2012
Liczba pięter:3
Piętro:2
Winda:nie
 
Standard mieszkania:
Stan nieruchomości:Dobry
Rodzaj ogrzewania:Gazowe
 
Pomieszczenia i pokoje:
Umeblowanie:tak
Typ kuchni:Aneks
 
Powierzchnia dodatkowa:
Balkon:tak
 
Bezpieczeństwo:
Monitoring:tak
Ochrona:tak
Recepcja:nie
Teren ogrodzony:tak
 
Miejsce parkingowe:
Garaż/miejsce parkingowe:tak
 
Numer oferty:
CRM:54555/2517/OMS

Pokaż więcejmniej  

Tagi

Agnieszka Gozdek

Pośredniczka w Obrocie Nieruchomościami



Masz pytania? Napisz!

Przepisz kod captcha:

Polecamy podobne oferty

Zapisz się na powiadomienia o podobnych ofertach

Przepisz kod captcha:

Zaktualizowaliśmy naszą Politykę Prywatności.

Nowe zapisy w Polityce Prywatności wynikają z konieczności dostosowania naszych działań oraz dokumentacji do nowych wymagań europejskiego Rozporządzenia o Ochronie Danych Osobowych (RODO), które jest stosowane od 25 maja 2018 r.

Zaawansowane