Mieszkanie 1 pokojowe na Sprzedaż

1 pokoje 37.58m²
MAZOWIECKIE Warszawa ul. Marii Callas

599 000 PLN

Wykończona kawalerka z ogrodem i klimatyzacją 37.58 m²

599 000 PLN Negocjuj cenę >

MAZOWIECKIE Warszawa ul. Marii Callas MAPA

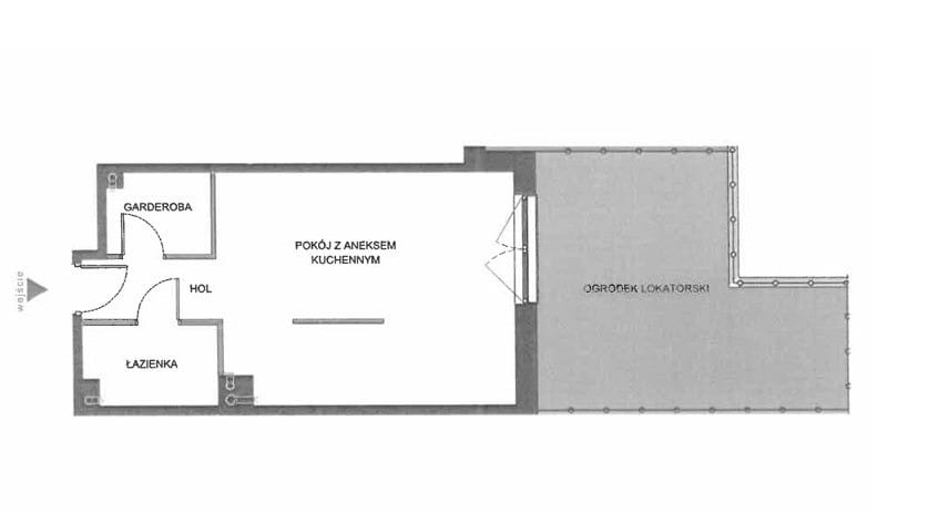
1/12

599 000 PLN WYŁĄCZNOŚĆ   

Na sprzedaż kawalerka o powierzchni 37,58m2, usytuowana na parterze w niskim, 2-piętrowym budynku z 2025 roku, położonym przy ul. Marii Callas.

MIESZKANIE:

Mieszkanie wykończone w wysokim standardzie, wyposażone w klimatyzację. Na podłodze deska podłogowa (dąb lity!), na ścianach sztukateria. Wyjątkowego klimatu prezentowanej nieruchomości nadają meble w stylu retro, elementy oświetlenia, czy pozłacane elementy. W mieszkaniu nikt nigdy nie mieszkał.

Salon wraz z wyposażonym w meble i niezbędne sprzęty AGD aneksem kuchennym ma łączną powierzchnię 26,91m2.
Łazienka wyposażona w kabinę prysznicową, WC, pralkę oraz umywalkę z lustrem ma 4,1m2.
Do mieszkania przynależy ogródek o powierzchni 25,43m2.
Kolejnym, dużym udogodnieniem jest funkcjonalna garderoba (3,33m2).
Lokal jest cichy, ze wschodnią ekspozycją okien.

OKOLICA:

Mieszkanie położone jest na nowoczesnym osiedlu Olchowy Park przy ul. Marii Callas na warszawskiej Białołęce. To spokojna, zielona okolica z pełną infrastrukturą: sklepy, szkoły, przedszkola i przystanki autobusowe dostępne w zasięgu spaceru.
W pobliżu znajdują się liczne tereny rekreacyjne oraz ścieżki rowerowe. Dogodny dojazd do centrum zapewnia trasa S8 oraz komunikacja miejska. Idealne miejsce dla osób szukających komfortu i spokoju z dala od miejskiego zgiełku.

INFORMACJE DODATKOWE:

Pełna własność na gruntach uregulowanych - przy zakupie można posiłkować się kredytem hipotecznym.
Do mieszkania przynależy naziemne miejsce postojowe płatne dodatkowo - 30.000zł.
Zgoda MSWiA na zakup mieszkania przez obywateli spoza UE nie jest wymagana.

Polecam i zapraszam na prezentację!



Pokaż więcejmniej  

 
Ogólne warunki:
Cena:599 000 PLN
Waluta:PLN
Liczba pokoi:1
Powierzchnia:37.58 m²
Cena za m2:15 939 PLN
Rynek:Wtórny
Stan prawny:
 
Opis budynku:
Liczba pięter:2
Winda:nie
 
Powierzchnia dodatkowa:
Balkon:nie
Komórka/Piwnica:nie
Loggia:nie
Ogródek:nie
Schowek:nie
Taras:nie
 
Bezpieczeństwo:
Monitoring:nie
Ochrona:nie
Teren ogrodzony:nie
 
Numer oferty:
CRM:34964549592

Pokaż więcejmniej  

Masz pytania? Napisz!

Przepisz kod captcha:

Polecamy podobne oferty

Zapisz się na powiadomienia o podobnych ofertach

Przepisz kod captcha:

Zaktualizowaliśmy naszą Politykę Prywatności.

Nowe zapisy w Polityce Prywatności wynikają z konieczności dostosowania naszych działań oraz dokumentacji do nowych wymagań europejskiego Rozporządzenia o Ochronie Danych Osobowych (RODO), które jest stosowane od 25 maja 2018 r.

Zaawansowane