Mieszkanie 3 pokojowe na Sprzedaż

3 pokoje 42.16m²
MAZOWIECKIE Warszawa Włochy ul. Solipska

779 000 PLN

2pok/bez PCC/deweloperka 42.16 m²

779 000 PLN Negocjuj cenę >

MAZOWIECKIE Warszawa Włochy ul. Solipska MAPA

1/10

779 000 PLN WYŁĄCZNOŚĆ   

Zakup bez PCC .

Mam przyjemność przedstawić Państwu 2-pokojowe mieszkanie usytuowane na pierwszym piętrze w 3 piętrowego bloku z 2026 roku- przy ul. Solipskiej 33 o łącznej powierzchni 42,16mkw. w bliskiej okolicy dużych arterii al. Jerozolimskich oraz ul. Łopuszańskiej.

Ogród Włochy- jedna z najpiękniejszych i najbardziej intrygujących dzielnic Warszawy. Jest świetnie skomunikowana, bo do centrum szybką koleją można dojechać w ok.15 minut, a cieszy spokojem, zielenią i elegancją.

Mieszkanie, mimo swojej bliskości do centrum miasta oraz wspomnianych węzłów komunikacyjnych, pozostaje miejscem cichym.


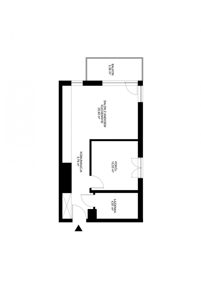
Układ lokalu:

Salon z aneksem kuchennym 20,92 mkw.
Pokój 10.53 mkw.
Łazienka 4.91 mkw.
Korytarz 5.79 mkw.

Do mieszkania przynależy balkon 5,38 mkw.

Do mieszkania przynależy miejsce postojowe w garażu podziemnym dodatkowo płatne w cenie 50 000 PLN. zakup nie obowiązkowy.

Mieszkanie w stanie deweloperskim, co pozwala na dowolną aranżację wnętrz według własnych upodobań.

Opis osiedla

Inwestycja Solipska City składa się z trzech budynków połączonych ze sobą .Każdy o wysokości 4 kondygnacji nadziemnych, usytuowanych na jednokondygnacyjnym garażu w części podziemnej. Kompleks mieszkaniowy zlokalizowany jest przy ulicy Tynkarskiej w Warszawie. Korytarz i klatka schodowa dostępna jest dla osób niepełnosprawnych. Mieszkania na sprzedaż są też dostępne za pośrednictwem wind, które obsługują wszystkie kondygnacje mieszkalne i garaż. Cały teren nieruchomości jest ogrodzony i monitorowany. Zróżnicowane metraże mieszkań i ustawne rozkłady pozwalają na atrakcyjną aranżację wnętrz.

Pomieszczenie na odpadki stałe - zlokalizowano wewnątrz budynku z oddzielnym wejściem oraz osobną wentylacją

Monitoring - osiedle znajdować się będzie pod stałą kontrolą kamer.

Zieleń - całość zagospodarowania terenu jest uzupełniona o zieleń niską.

Najbliższa okolica osiedla Solipska City

260m (1 min pieszo) - Stacja kolejowa Warszawa Włochy, 400m (3min pieszo) przystanek autobusowy

750m (9 min pieszo) Szkoła Podstawowa 66 , 380mkm (4 min pieszo) Liceum , 500m (6 min pieszo) Przedszkole

370m (5 min pieszo) - Przychodnia Lekarska, 400m (5 min pieszo) Apteka

700m (8min pieszo) sklep Lewiatan, 800m (10 min pieszo) Lidl, 5,5km (10min pieszo)

850m (12min pieszo) Park ze Stawami Cietrzewia, 260m (2 min pieszo) Park Kombatantów

Dzięki bliskości dróg szybkiego ruchu dojazd jest szybki do większości dzielnic i miejsc biznesowych Warszawy, a w szczególności do Śródmieścia, Mordoru i Międzynarodowego Lotniska Chopina.

Komunikacja miejska:

Kolej: PKP Warszawa Włochy.

Autobus: 127, 129, 178, 189,191, 228, N01 oraz N85.

Mieszkanie własnościowe z księgą wieczystą.

Jeśli zainteresowało Państwa to rewelacyjne mieszkanie w fantastycznej okolicy, to zapraszam na prezentację!

Powyższa oferta ma charakter informacyjny i nie stanowi oferty handlowej w rozumieniu art. 66 §1 Kodeksu Cywilnego.









Pokaż więcejmniej  

 
Ogólne warunki:
Cena:779 000 PLN
Waluta:PLN
Liczba pokoi:3
Powierzchnia:42.16 m²
Cena za m2:18 477 PLN
Czynsz administracyjny:1 zł
Rynek:Pierwotny
 
Opis budynku:
Rodzaj budynku:Blok mieszkalny
Rok budowy:2026
Liczba pięter:3
Piętro:1
Stan budynku:deweloperski
Winda:tak
 
Standard mieszkania:
Stan nieruchomości:deweloperski
Rodzaj ogrzewania:CO miejskie
 
Pomieszczenia i pokoje:
Typ kuchni:Aneks kuchenny
 
Powierzchnia dodatkowa:
Balkon:nie
Komórka/Piwnica:nie
Loggia:nie
Ogródek:tak
Schowek:nie
Taras:tak
 
Bezpieczeństwo:
Monitoring:tak
Ochrona:tak
Teren ogrodzony:tak
 
Numer oferty:
CRM:34964531630

Pokaż więcejmniej  

Tagi

Agnieszka Gozdek

Pośredniczka w Obrocie Nieruchomościami



Masz pytania? Napisz!

Przepisz kod captcha:

Polecamy podobne oferty

Zapisz się na powiadomienia o podobnych ofertach

Przepisz kod captcha:

Zaktualizowaliśmy naszą Politykę Prywatności.

Nowe zapisy w Polityce Prywatności wynikają z konieczności dostosowania naszych działań oraz dokumentacji do nowych wymagań europejskiego Rozporządzenia o Ochronie Danych Osobowych (RODO), które jest stosowane od 25 maja 2018 r.

Zaawansowane