Mieszkanie 3 pokojowe na Sprzedaż

3 pokoje 91.77m²
MAZOWIECKIE Warszawa Wilanów ul. Sarmacka

1 900 000 PLN

Apartament 3 pokoje 92 m² + ogródek 9 m² + garaż 91.77 m²

1 900 000 PLN Negocjuj cenę >

MAZOWIECKIE Warszawa Wilanów ul. Sarmacka MAPA

1/21

1 900 000 PLN WYŁĄCZNOŚĆ   

Luksusowy apartament po generalnym remoncie z ogródkiem w Miasteczku Wilanów

Elegancki, świeżo wyremontowany apartament ok. 92 m² z prywatnym ogrodem ok. 9 m², położony w prestiżowej inwestycji Royal Residence w Miasteczku Wilanów. Wnętrze zostało zaprojektowane z dbałością o detale, z wykorzystaniem wysokiej klasy materiałów, tworząc spójną i komfortową przestrzeń do życia.

Przestronne mieszkanie o funkcjonalnym układzie zachwyca dużymi przeszkleniami, które zapewniają doskonałe doświetlenie wnętrza. Prywatny ogródek stanowi idealne miejsce do relaksu na co dzień.

To doskonała propozycja dla osób poszukujących gotowego, eleganckiego wnętrza - apartament jest w pełni przygotowany do zamieszkania od zaraz.

NAJWAŻNIEJSZE ATUTY:


  • Przestronny apartament (ok. 92 m²) z funkcjonalnym układem: 3 pokoje + garderoba

  • Parter z prywatnym ogródkiem (ok. 9 m²) od strony cichego patio

  • Jasna strefa dzienna (ponad 40 m²) z otwartą kuchnią i wyspą

  • Duże przeszklenia zapewniające doskonałe doświetlenie wnętrza

  • Wysoki standard wykończenia - egzotyczne drewno, kamień, zabudowy na wymiar

  • Pełne wyposażenie, w tym sprzęt AGD (m.in. Bosch)

  • Osobne WC - wygodne rozwiązanie dla gości

  • Spójna, elegancka i dopracowana aranżacja

  • Po generalnym remoncie - mieszkanie gotowe do zamieszkania

  • Osiedle zamknięte, monitorowane, z ochroną

  • Doskonała lokalizacja - szybki dojazd do centrum, tras S2 i S8 oraz lotniska Chopina



OPIS NIERUCHOMOŚCI:

Prezentowany apartament o powierzchni ok. 92 m² położony jest na parterze nowoczesnego budynku przy ul. Sarmackiej, na kameralnym, zamkniętym i strzeżonym osiedlu. Nieruchomość posiada prywatny ogródek o powierzchni ok. 9 m² z widokiem na ciche patio, stanowiący naturalne przedłużenie strefy dziennej.

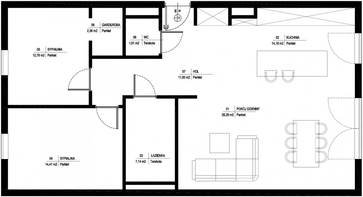
Układ pomieszczeń:

Mieszkanie wyróżnia się funkcjonalnym i przemyślanym układem pomieszczeń:


  • przestronny salon z aneksem kuchennym z wyspą oraz częścią jadalnianą - 42,47 m²

  • sypialnia główna - 14,41 m²

  • drugi pokój (sypialnia / gabinet / pokój dziecka) - 12,78 m²

  • garderoba z zabudową stolarską - 2,36 m²

  • łazienka z prysznicem typu walk-in oraz wanną - 7,14 m²

  • dodatkowe WC - 1,91 m²

  • przestronny hol - 11,5 m²

  • ogródek - 9 m²



Standard wykończenia i detale:

Apartament przeszedł generalny remont i został wykończony w wysokim standardzie, z dbałością o spójność oraz jakość detali:


  • naturalna drewniana podłoga (w tym drewno egzotyczne)

  • zabudowy stolarskie wykonane na wymiar, w tym funkcjonalna garderoba

  • kuchnia z wyspą wykończoną kamieniem oraz pełnym sprzętem AGD (m.in. Bosch)

  • duże okna zapewniające doskonałe doświetlenie wnętrza

  • elegancka łazienka w jasnych tonacjach z prysznicem walk-in, wanną i dużym lustrem z podświetleniem LED

  • dodatkowe WC wykończone dekoracyjną mozaiką i szkłem

  • designerskie akcenty (tapety, oświetlenie, tekstylia)

  • biokominek w salonie tworzący wyjątkowy klimat

  • rolety antywłamaniowe oraz system sterowania żaluzjami


Spójna kolorystyka oparta na bieli, beżach i naturalnym drewnie nadaje wnętrzu ponadczasowy i elegancki charakter.

Stan techniczny:

Mieszkanie w bardzo dobrym stanie, gotowe do zamieszkania bez konieczności ponoszenia dodatkowych nakładów finansowych. Kuchnia wyposażona jest w sprzęt AGD marki Bosch: piekarnik, mikrofalówkę, lodówkę, zmywarkę, płytę indukcyjną oraz okap wyspowy. Salon wyposażony jest w stół, krzesła oraz sofę (bez telewizora oraz bez mebli ruchomych w sypialni głównej).

Styl wnętrza:

Nowoczesny z elementami elegancji, soft glamour oraz naturalnych materiałów - ciepły, harmonijny i dopracowany w każdym detalu.

OPIS INWESTYCJI:

„Royal Residence” przy ul. Sarmackiej w Warszawie to kameralny budynek mieszkalny położony w sercu Miasteczka Wilanów - jednej z najbardziej cenionych i dynamicznie rozwijających się części Warszawy. Niska, elegancka zabudowa z wewnętrznym dziedzińcem zapewnia mieszkańcom komfort i prywatność. Osiedle jest zamknięte i jest pod całodobową ochroną.

LOKALIZACJA i OKOLICA:

Miasteczko Wilanów, w tym ul. Sarmacka, to jedna z najbardziej pożądanych lokalizacji w Warszawie - nowoczesna, estetyczna i doskonale zaplanowana. Kameralna zabudowa, liczne tereny zielone oraz rozbudowana infrastruktura sprawiają, że jest to idealne miejsce do życia.

W najbliższym otoczeniu znajdują się:


  • liczne restauracje, kawiarnie, sklepy i punkty usługowe

  • renomowane szkoły i placówki edukacyjne

  • tereny rekreacyjne, ścieżki rowerowe oraz miejsca spacerowe

  • Pałac w Wilanowie i rozległe tereny zielone

  • szpital Medicover

  • pole golfe


Lokalizacja łączy komfort życia miejskiego z spokojną, kameralną atmosferą.

KOMUNIKACJA:


  • Szybki dojazd do centrum Warszawy

  • Bliskość tras S2 i S8 oraz Południowej Obwodnicy Warszawy

  • Dogodny dojazd do lotniska Chopina

  • Dobrze rozwinięta komunikacja miejska


INFORMACJE DODATKOWE ORAZ OPŁATY:


  • miejsce postojowe w garażu podziemnym - 70 000 zł (dodatkowo płatne)

  • czynsz administracyjny: 1 675 zł (zawiera m.in. zaliczki na wodę i ogrzewanie, fundusz remontowy, wywóz nieczystości, ochronę oraz administrację)

  • osiedle zamknięte i monitorowane


DLA KOGO:


  • Dla pary lub rodziny (2+1 lub 2+2) szukającej komfortowej przestrzeni do życia

  • Dla osób pracujących z domu - możliwość aranżacji gabinetu

  • Dla klientów premium ceniących wysoką jakość, estetykę i gotowe wnętrza

  • Dla wymagających osób poszukujących gotowego produktu bez konieczności remontu



STAN PRAWNY:


  • Własność z możliwością zakupu na kredyt hipoteczny.



ZAPRASZAM:

To apartament łączący komfort, estetykę i funkcjonalność z wysoką jakością wykończenia oraz doskonale doświetloną przestrzenią. Każdy detal został tu starannie dopracowany, co przekłada się na realny komfort codziennego życia.

To propozycja dla osób, które szukają gotowego, eleganckiego wnętrza w jednej z najlepszych lokalizacji Warszawy - idealnego do zamieszkania bez kompromisów.

Napisz wiadomość lub zadzwoń - odpowiadam szybko. Możliwość umówienia prezentacji w dogodnym terminie.





Pokaż więcejmniej  

 
Ogólne warunki:
Cena:1 900 000 PLN
Waluta:PLN
Liczba pokoi:3
Powierzchnia:91.77 m²
Cena za m2:20 704 PLN
Czynsz administracyjny:1675 zł
Rynek:Wtórny
 
Opis budynku:
Rodzaj budynku:Blok mieszkalny
Rok budowy:2005
Liczba pięter:4
Stan budynku:bardzo dobry
Winda:tak
 
Standard mieszkania:
Stan nieruchomości:bardzo dobry
Rodzaj ogrzewania:CO miejskie
 
Pomieszczenia i pokoje:
Typ kuchni:Aneks kuchenny
 
Powierzchnia dodatkowa:
Balkon:nie
Komórka/Piwnica:nie
Loggia:nie
Ogródek:tak
Schowek:nie
Taras:nie
 
Bezpieczeństwo:
Monitoring:tak
Ochrona:tak
Teren ogrodzony:tak
 
Numer oferty:
CRM:34964542340

Pokaż więcejmniej  

Tagi

Roberto Sochaj

Pośrednik w Obrocie Nieruchomościami



Masz pytania? Napisz!

Przepisz kod captcha:

Polecamy podobne oferty

Zapisz się na powiadomienia o podobnych ofertach

Przepisz kod captcha:

Zaktualizowaliśmy naszą Politykę Prywatności.

Nowe zapisy w Polityce Prywatności wynikają z konieczności dostosowania naszych działań oraz dokumentacji do nowych wymagań europejskiego Rozporządzenia o Ochronie Danych Osobowych (RODO), które jest stosowane od 25 maja 2018 r.

Zaawansowane