Dom 5 pokojowe na Sprzedaż

5 pokoje 121.44m²
ZACHODNIOPOMORSKIE policki ul. Zielona

850 000 PLN

Dom w zabudowie bliźniaczej za miastem | Redlica 121.44 m²

850 000 PLN Negocjuj cenę >

ZACHODNIOPOMORSKIE policki ul. Zielona MAPA

1/20

850 000 PLN WYŁĄCZNOŚĆ   

Dom na sprzedaż w zabudowie bliźniaczej w stanie deweloperskim, z garażem i ogródkiem, położony przy ulicy Zielonej w miejscowości Redlica pomiędzy Wołczkowem a Dobrą w bliskiej odległości od drogi asfaltowej (droga dojazdowa z dobrze ułożonych płyt betonowych 1km, dobrze oświetlona).

Dom:
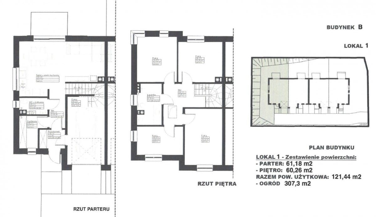
- pow. użytkowa 121,44mkw
- orientacja na wschód i południe (dużo światła)
- wys. pomieszczeń na parterze 290cm
- ściany: pustak ceramiczny Porotherm
- strop i ławy: żelbet
- dach: konstrukcja drewniana, dachówka ceramiczna
- ocieplenie budynku - styropian 20 cm
- ocieplenie stropu nad piętrem - wełna mineralna 25 cm
- izolacja przeciwwilgociowa i przeciwwodna; izolacja podłogi - styropian 20 cm
- sufit na piętrze w technologii kartonowo - gipsowej GK
- drzwi wejściowe metalowe antywłamaniowe
- okna PCV trzyszybowe; parapety zewnętrzne metalowe
- obróbka blacharska - blacha ocynkowana
- wykończenie ścian - tynki gipsowe
- ogrzewanie podłogowe w całym domu z piecem gazowym firmy De Dietrich z zamkniętą komorą spalania
- schody wylewane betonowe
- instalacja elektryczna 3-fazowa
- gotowa instalacja alarmowa antywłamaniowa

Parter: 61,18mkw
- garaż z bramą wjazdową na pilota
- łazienka (z piecem gazowym)
- salon z aneksem i wyjściem na ogródek; podłączenie pod kominek - komin z wkładem ceramicznym; drzwi tarasowe duże rozsuwane
- wiatrołap
- garderoba

Piętro: 60,62mkw
- duża łazienka z miejscem na wannę i prysznic
- 4 sypialnie
- hol

Dodatkowo duże poddasze, na które prowadzą opuszczane schody.

Działka:
- ogródek o powierzchni 307,3mkw
- dojazd do domu i taras - kostka z polbruku
- teren ogrodzony z bramą wjazdową na pilota
- możliwość wyznaczenia dodatkowego prywatnego miejsca postojowego plus jedno miejsce istniejące vis a vis garażu nie kolidujące z sąsiadami

Okolica:
Dom położony jest w cichej, malowniczej Redlicy - zaledwie 3km od Dobrej Szczecińskiej, 3km od Wołczkowa, 4km od Bezrzecza i 7km od przejścia granicznego w Lubieszynie. W okolicy domy jednorodzinne oraz w zabudowie bliźniaczej. Najbliższe sklepy to Dino i Netto, do których jest zaledwie 3km. Dzięki centralnemu umiejscowieniu w pobliżu znajdują się liczne przedszkola i szkoły, a także restauracje, punkty handlowe, usługowe i gastronomiczne, paczkomaty itp. Miejsce idealne dla rodziny, która szuka swojego miejsca do życia w otoczeniu zieleni z dostępem do miejskiej infrastruktury w okolicy, która szybko się rozwija.



Pokaż więcejmniej  

 
Ogólne warunki:
Rynek:Wtórny
Cena:850 000 PLN
Waluta:PLN
Cena za m2:6 999 PLN
Liczba pokoi:5
 
Standard domu:
Stan budynku:deweloperski
Rok budowy:2024
Liczba pięter:1
 
Bezpieczeństwo:
Monitoring:nie
Teren strzeżony:nie
 
Media:
Rodzaj ogrzewania:Gazowe
 
Pomieszczenia i pokoje:
Typ kuchni:Z oknem otwarta na salon
 
Numer oferty:
CRM:34964535821

Pokaż więcejmniej  

Tagi

Masz pytania? Napisz!

Przepisz kod captcha:

Polecamy podobne oferty

Zapisz się na powiadomienia o podobnych ofertach

Przepisz kod captcha:

Zaktualizowaliśmy naszą Politykę Prywatności.

Nowe zapisy w Polityce Prywatności wynikają z konieczności dostosowania naszych działań oraz dokumentacji do nowych wymagań europejskiego Rozporządzenia o Ochronie Danych Osobowych (RODO), które jest stosowane od 25 maja 2018 r.

Zaawansowane