Dom 6 pokojowe na Sprzedaż

6 pokoje 231.48m²
WIELKOPOLSKIE Poznań ul. Adama Skałkowskiego

1 595 000 PLN

Funkcjonalny dom | Umultowo 231.48 m²

1 595 000 PLN Negocjuj cenę >

WIELKOPOLSKIE Poznań ul. Adama Skałkowskiego MAPA

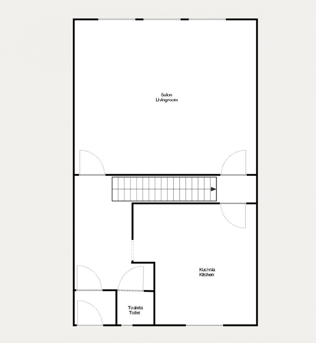
1/14

1 595 000 PLN WYŁĄCZNOŚĆ   

Przestronny segment na Grunwaldzie | Fotowoltaika i Potencjał

DOM W ZABUDOWIE SZEREGOWEJ W PRESTIŻOWEJ LOKALIZACJI Segment środkowy | Fotowoltaika 5,4 kW | Wszystkie media miejskie | Cicha i bezpieczna okolica

Zapraszam do zapoznania się z ofertą domu, który łączy funkcjonalność miejskiego życia z przestrzenią dla dużej rodziny. Nieruchomość zlokalizowana w sercu poznańskiego Umultowo oferuje ogromny potencjał aranżacyjny i nowoczesne rozwiązania energooszczędne. Idealny dla: rodzin z dziećmi, osób pracujących z domu lub jako inwestycja pod wynajem.

INFORMACJE O NIERUCHOMOŚCI:

Powierzchnia użytkowa: 167,48 m²
Powierzchnia całkowita: ok. 231,48 m² (wraz z piwnicą)
Powierzchnia działki: 165 m² z ekspozycją ogrodu na stronę południową.
Ekspozycja: północ (front domu) oraz południe (salon, ogród)

Technologia: Dom murowany z cegły, dach pokryty dachówką.

Bezpieczeństwo: Teren w pełni ogrodzony, wyposażony w domofon oraz elektryczne rolety zewnętrzne na parterze.

INFRASTRUKTURA I MEDIA:

Media: Prąd, woda, gaz oraz kanalizacja miejska.
Ogrzewanie: Nowoczesna instalacja wymieniona 2 lata temu - nowe kaloryfery oraz dwufunkcyjny kocioł gazowy.
Ekologia: Zamontowane panele fotowoltaiczne o mocy 5,4 kW.

LOKALIZACJA: Nieruchomość znajduje się w Poznaniu, Różany Potok, Poznań-Stare Miasto - jednej z najbardziej cenionych części miasta. Lokalizacja ta zapewnia idealny balans pomiędzy ciszą terenów zielonych a bliskością pełnej infrastruktury: szkół, punktów usługowych oraz szybkiego połączenia z centrum Poznania.

INFORMACJE DODATKOWE:

Pomieszczenia dodatkowe: Dom posiada pełne podpiwniczenie, idealne pod działalność gospodarczą. 
Niskie koszty: Czynsz administracyjny wynosi zaledwie ok. 300 PLN (obejmuje m.in. wodę i kanalizację i śmieci).

Serdecznie zapraszam na prezentację!



Pokaż więcejmniej  

 
Ogólne warunki:
Rynek:Wtórny
Cena:1 595 000 PLN
Waluta:PLN
Cena za m2:6 890 PLN
Liczba pokoi:6
 
Standard domu:
Stan budynku:dobry
Rok budowy:1996
Liczba pięter:2
 
Bezpieczeństwo:
Monitoring:nie
Teren strzeżony:nie
 
Media:
Rodzaj ogrzewania:CO własne
 
Pomieszczenia i pokoje:
Typ kuchni:Z oknem
 
Numer oferty:
CRM:34964538662

Pokaż więcejmniej  

Tagi

Masz pytania? Napisz!

Przepisz kod captcha:

Polecamy podobne oferty

Zapisz się na powiadomienia o podobnych ofertach

Przepisz kod captcha:

Zaktualizowaliśmy naszą Politykę Prywatności.

Nowe zapisy w Polityce Prywatności wynikają z konieczności dostosowania naszych działań oraz dokumentacji do nowych wymagań europejskiego Rozporządzenia o Ochronie Danych Osobowych (RODO), które jest stosowane od 25 maja 2018 r.

Zaawansowane