Mieszkanie 1 pokojowe na Sprzedaż

1 pokoje 28.5m²
MAZOWIECKIE legionowski ul. Leśna

350 000 PLN

Kawalerka blisko lasu Jabłonna 28.5 m²

350 000 PLN Negocjuj cenę >

MAZOWIECKIE legionowski ul. Leśna MAPA

1/20

350 000 PLN WYŁĄCZNOŚĆ   

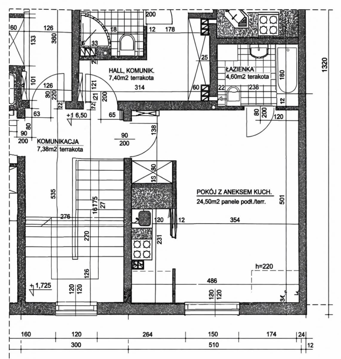
Na sprzedaż kawalerka o powierzchni 28,5 m² położona w Jabłonnie przy ul. Leśnej 21A.

Mieszkanie
Lokal o funkcjonalnym układzie, składający się z pokoju dziennego z aneksem kuchennym oraz łazienki z prysznicem. Ekspozycja wschodnia zapewnia dobre doświetlenie w godzinach porannych. Stan mieszkania do odświeżenia, co daje możliwość aranżacji według własnych potrzeb. Idealne jako pierwsze mieszkanie lub inwestycja pod wynajem.

Budynek
Mieszkanie znajduje się na 2 piętrze w 3-piętrowym budynku z 2000 roku. Budynek bez windy, w dobrym stanie technicznym, z kameralną zabudową.

Lokalizacja
Nieruchomość położona w spokojnej i zielonej części Jabłonny. W okolicy liczne tereny spacerowe, lasy oraz niska zabudowa mieszkaniowa. Lokalizacja zapewnia szybki dojazd do Warszawy - około 25-35 minut samochodem, w zależności od natężenia ruchu. W pobliżu dostępna komunikacja autobusowa z połączeniami do Warszawy oraz Legionowa.

Informacje dodatkowe
Mieszkanie idealne dla singla, pary lub jako inwestycja.
Forma własności: do uzupełnienia.
Czynsz: do uzupełnienia.

Kontakt
Zapraszam do kontaktu w celu uzyskania szczegółowych informacji oraz umówienia prezentacji.



Pokaż więcejmniej  

 
Ogólne warunki:
Cena:350 000 PLN
Waluta:PLN
Liczba pokoi:1
Powierzchnia:28.5 m²
Cena za m2:12 281 PLN
Czynsz administracyjny:492 zł
Rynek:Wtórny
 
Opis budynku:
Rok budowy:2000
Liczba pięter:2
Piętro:2
Stan budynku:dobry
Winda:nie
 
Standard mieszkania:
Stan nieruchomości:dobry
 
Pomieszczenia i pokoje:
Typ kuchni:Bez okna otwarta na salon
 
Powierzchnia dodatkowa:
Balkon:nie
Komórka/Piwnica:nie
Loggia:nie
Ogródek:nie
Schowek:nie
Taras:nie
 
Bezpieczeństwo:
Monitoring:nie
Ochrona:nie
Teren ogrodzony:nie
 
Numer oferty:
CRM:34964548839

Pokaż więcejmniej  

Tagi

Ewa Chęć-Gładyszewska

Doradczyni Nieruchomości



Masz pytania? Napisz!

Przepisz kod captcha:

Polecamy podobne oferty

Zapisz się na powiadomienia o podobnych ofertach

Przepisz kod captcha:

Zaktualizowaliśmy naszą Politykę Prywatności.

Nowe zapisy w Polityce Prywatności wynikają z konieczności dostosowania naszych działań oraz dokumentacji do nowych wymagań europejskiego Rozporządzenia o Ochronie Danych Osobowych (RODO), które jest stosowane od 25 maja 2018 r.

Zaawansowane