Mieszkanie 4 pokojowe na Sprzedaż

4 pokoje 88m²
MAZOWIECKIE wołomiński ul. Miedziana

710 000 PLN

Mieszkanie na sprzedaż 4 pokoje Miedziana, Marki 88 m²

710 000 PLN Negocjuj cenę >

MAZOWIECKIE wołomiński ul. Miedziana MAPA

1/20

710 000 PLN WYŁĄCZNOŚĆ   

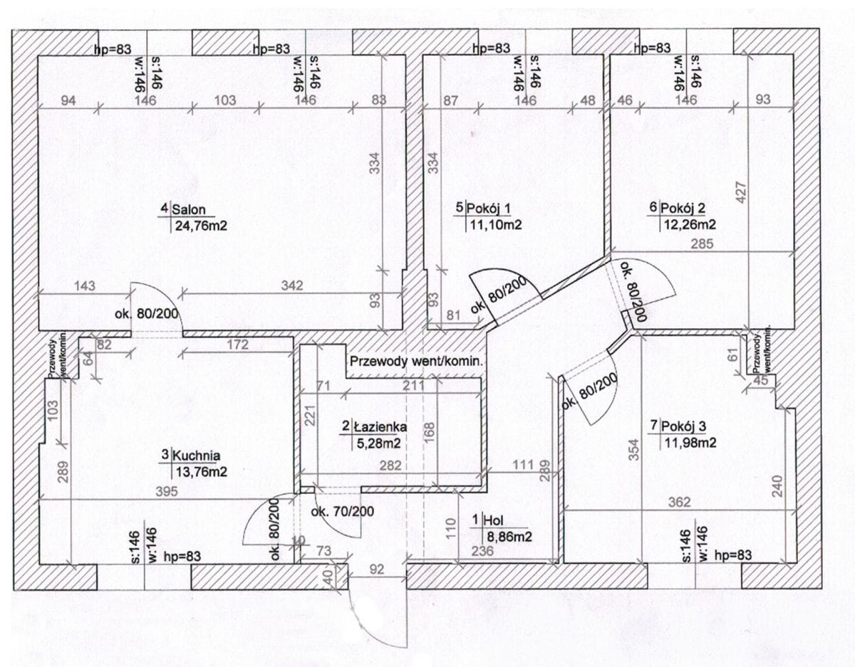
Do sprzedaży duże mieszkanie o powierzchni całkowitej 88 m2  w Markach.
Mieszkanie powstało z połączenia 2 mieszkań i stanowi obecnie 4 pokojowe mieszkanie z widną kuchnią i łazienką. 
POMIESZCZENIA     Powierzchnia m2
Salon                                         24,76
Kuchnia                                     13,76
Sypialnia 1                                 11,10
Sypialnia 2                                 12,26
Sypialnia 3                                  11,98
Łazienka                                      5,28
Hall                                              8,86
Na podłodze ułożona mozaika drewniana.
Instalacja miedziana 2-przewodowa.
Ogrzewanie i podgrzewanie wody z własnej instalacji z piecem gazowym. Koszt gazu to około 770,- zł co 2 miesiące. 
Czynsz administracyjny z funduszem remontowym dla 4 osób to 550,- zł z zaliczkami na wodę i wywozem śmieci.
Właściciele mieszkania korzystają z:
- 2 komórek lokatorskich zlokalizowanych na terenie osiedla
- garażu blaszanego i miejsca postojowego.
Budynek mieszkalny 2 piętrowy bez windy. Mieszkanie zlokalizowane na 2 piętrze. Wejście do mieszkania z zewnętrznej antresoli.
Pełna własność z Księgą Wieczystą. Możliwy zakup z kredytem.
Mieszkanie bardzo ciche w budynku zlokalizowanym na bardzo dużej działce.w związku z tym są duże odległości pomiędzy sąsiadującymi budynkami.
OKOLICA:
W najbliższej okolicy stadion sportowy. 
Sklepy spożywcze i przemysłowe, przedszkola, szkoły, żłobki, restauracje, bary.
Blisko do komunikacji miejskiej.
ZAPRASZAMY NA PREZENTACJĘ





Pokaż więcejmniej  

 
Ogólne warunki:
Cena:710 000 PLN
Waluta:PLN
Liczba pokoi:4
Powierzchnia:88 m²
Cena za m2:8 068 PLN
Czynsz administracyjny:550 zł
Rynek:Wtórny
 
Opis budynku:
Rodzaj budynku:Blok mieszkalny
Rok budowy:1989
Liczba pięter:2
Piętro:2
Stan budynku:dobry
Winda:nie
 
Standard mieszkania:
Stan nieruchomości:dobry
Rodzaj ogrzewania:CO własne
 
Pomieszczenia i pokoje:
Typ kuchni:Zamykana z oknem
 
Powierzchnia dodatkowa:
Balkon:nie
Komórka/Piwnica:nie
Loggia:nie
Ogródek:nie
Schowek:tak
Taras:nie
 
Bezpieczeństwo:
Monitoring:nie
Ochrona:nie
Teren ogrodzony:tak
 
Numer oferty:
CRM:34964550794

Pokaż więcejmniej  

Tagi

Masz pytania? Napisz!

Przepisz kod captcha:

Polecamy podobne oferty

Zapisz się na powiadomienia o podobnych ofertach

Przepisz kod captcha:

Zaktualizowaliśmy naszą Politykę Prywatności.

Nowe zapisy w Polityce Prywatności wynikają z konieczności dostosowania naszych działań oraz dokumentacji do nowych wymagań europejskiego Rozporządzenia o Ochronie Danych Osobowych (RODO), które jest stosowane od 25 maja 2018 r.

Zaawansowane