Dom 5 pokojowe na Sprzedaż

5 pokoje 194.03m²
WIELKOPOLSKIE Poznań Piątkowo ul. Władysława Biegańskiego

1 200 000 PLN

Wolnostojący do remontu - dobry na firmę 194.03 m²

1 200 000 PLN Negocjuj cenę >

WIELKOPOLSKIE Poznań Piątkowo ul. Władysława Biegańskiego MAPA

1/25

1 200 000 PLN WYŁĄCZNOŚĆ   

Jeśli szukasz domu z charakterem, solidną konstrukcją i dużym potencjałem aranżacyjnym - ta nieruchomość przy ul. Biegańskiego może być idealnym miejscem do życia dla Twojej rodziny.

Wolnostojący budynek mieszkalny o bryle w kształcie litery L, położony na narożnej działce o powierzchni 455 m², oferuje komfortową przestrzeń do życia oraz możliwość dostosowania wnętrz do własnych potrzeb. Dom posiada dwie kondygnacje nadziemne oraz częściowe podpiwniczenie, dzięki czemu zapewnia zarówno przestrzeń mieszkalną, jak i praktyczne zaplecze gospodarcze.

Budynek został wybudowany w tradycyjnej technologii murowanej z cegły, ze stropami żelbetowymi - solidna konstrukcja charakterystyczna dla budownictwa z tego okresu gwarantuje trwałość i dobrą bazę do modernizacji. We wnętrzach zachowały się elementy klasycznego wykończenia, takie jak drewniana klepka dębowa, a w części pomieszczeń zastosowano terakotę oraz lastriko.

Dom oferuje funkcjonalny układ pomieszczeń, który można z łatwością dostosować do współczesnych potrzeb mieszkaniowych. Przestronne pokoje, hall, taras oraz balkony tworzą komfortową przestrzeń do codziennego życia i wypoczynku.

Układ pomieszczeń

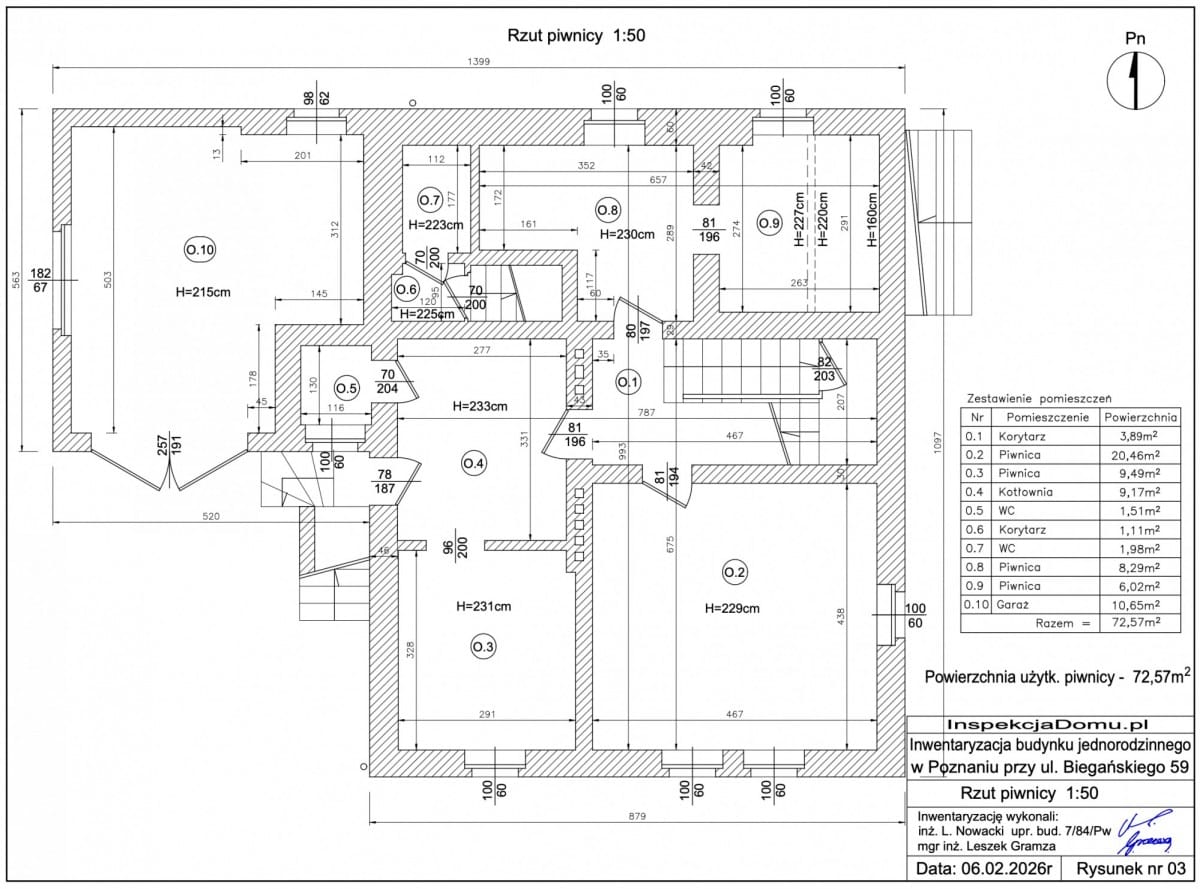
Poziom -1 (piwnica) - 72,57 m²
korytarze
kilka pomieszczeń piwnicznych (idealnych na przechowywanie, spiżarnię lub warsztat)
kotłownia
dwa WC
garaż
Przestrzeń ta może pełnić funkcję zaplecza gospodarczego, pralni, domowej siłowni lub pracowni.

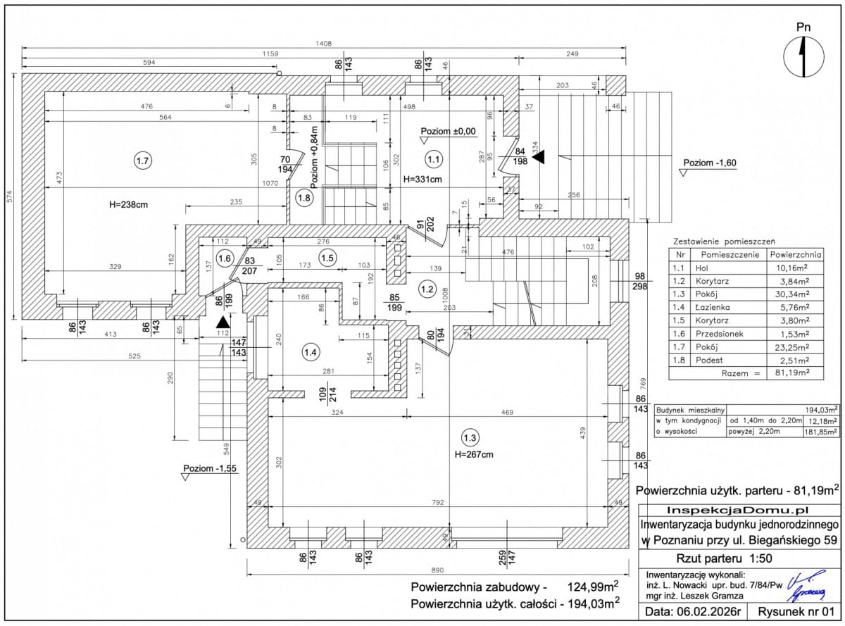
Parter - 81,19 m²
przestronny hol
dwa duże pokoje (w tym jeden ponad 30 m²)
łazienka
przedsionek
komunikacja
Parter daje możliwość stworzenia komfortowej strefy dziennej - salonu z jadalnią, kuchni oraz gabinetu lub pokoju gościnnego.

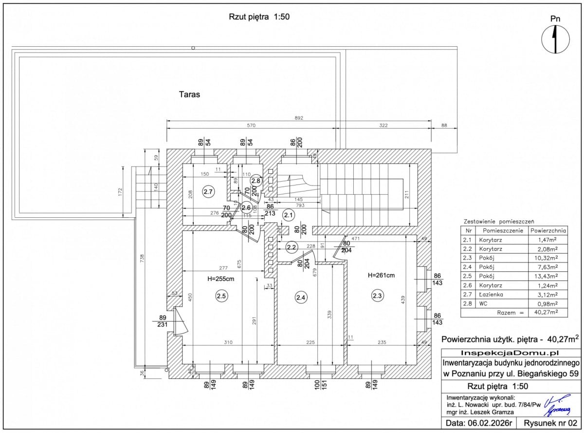
Piętro - 40,27 m²
trzy pokoje
łazienka
WC
korytarze
To idealna przestrzeń na prywatną strefę domowników - sypialnie oraz pokój dziecięcy lub gabinet.

Powierzchnia łączna:
194,03 m² powierzchni użytkowej
206,21 m² powierzchni po podłodze

Działka i otoczenie

Narożna działka zapewnia dobrą ekspozycję oraz większe poczucie przestrzeni. Ogród daje możliwość aranżacji strefy wypoczynkowej, ogrodu rodzinnego lub miejsca do rekreacji. Istnieje również możliwość stworzenia dodatkowych miejsc parkingowych na terenie posesji.

Lokalizacja - wygodne miejsce do życia

Nieruchomość znajduje się w spokojnej, dobrze skomunikowanej części Poznania. W najbliższej okolicy dostępne są liczne udogodnienia ułatwiające codzienne funkcjonowanie:
sklepy i punkty usługowe
szkoły oraz przedszkola
tereny zielone i rekreacyjne
przystanki komunikacji miejskiej
szybki dojazd do centrum miasta

To lokalizacja, która łączy kameralny charakter zabudowy jednorodzinnej z wygodnym dostępem do miejskiej infrastruktury.

Potencjał nieruchomości

Dom stanowi świetną bazę do modernizacji i aranżacji według własnego stylu. Dzięki solidnej konstrukcji oraz przestronnemu układowi może stać się komfortowym domem dla dużej rodziny, a także atrakcyjną inwestycją pod wynajem lub dom wielopokoleniowy.

Zapraszamy do kontaktu i umówienia się na prezentację nieruchomości.





Pokaż więcejmniej  

 
Ogólne warunki:
Rynek:Wtórny
Cena:1 200 000 PLN
Waluta:PLN
Cena za m2:6 185 PLN
Liczba pokoi:5
 
Standard domu:
Stan budynku:do remontu
Rok budowy:1968
Liczba pięter:1
 
Bezpieczeństwo:
Monitoring:nie
Teren strzeżony:nie
 
Media:
Rodzaj ogrzewania:Gazowe
 
Pomieszczenia i pokoje:
Typ kuchni:Zamykana z oknem
 
Numer oferty:
CRM:34964539829

Pokaż więcejmniej  

Tagi

Masz pytania? Napisz!

Przepisz kod captcha:

Polecamy podobne oferty

Zapisz się na powiadomienia o podobnych ofertach

Przepisz kod captcha:

Zaktualizowaliśmy naszą Politykę Prywatności.

Nowe zapisy w Polityce Prywatności wynikają z konieczności dostosowania naszych działań oraz dokumentacji do nowych wymagań europejskiego Rozporządzenia o Ochronie Danych Osobowych (RODO), które jest stosowane od 25 maja 2018 r.

Zaawansowane