Dom 6 pokojowe na Sprzedaż

6 pokoje 217m²
MAZOWIECKIE pruszkowski Helenówek ul. Narcyzowa

3 750 000 PLN

Dom premium przy lesie | Kanie k. Komorowa | 217m2 217 m²

3 750 000 PLN Negocjuj cenę >

MAZOWIECKIE pruszkowski Helenówek ul. Narcyzowa MAPA

1/20

3 750 000 PLN WYŁĄCZNOŚĆ   

Dom premium przy lesie | Kanie k. Komorowa | 217m2 | działka 1500m2

Na sprzedaż nowoczesny dom jednorodzinny klasy premium, położony w prestiżowej i kameralnej części osiedla w Kaniach, w pobliżu Nadarzyna i Komorowa, w bezpośrednim sąsiedztwie lasu. Nieruchomość zaprojektowana z myślą o najbardziej wymagających klientach - łączy wysoką jakość wykończenia, zaawansowaną technologię, energooszczędność oraz wyjątkowy komfort życia.

Dom o powierzchni 217 m2, 6-pokojowy, w pełni wykończony i gotowy do zamieszkania - nigdy wcześniej niezamieszkały.

Cena: 3 750 000 zł

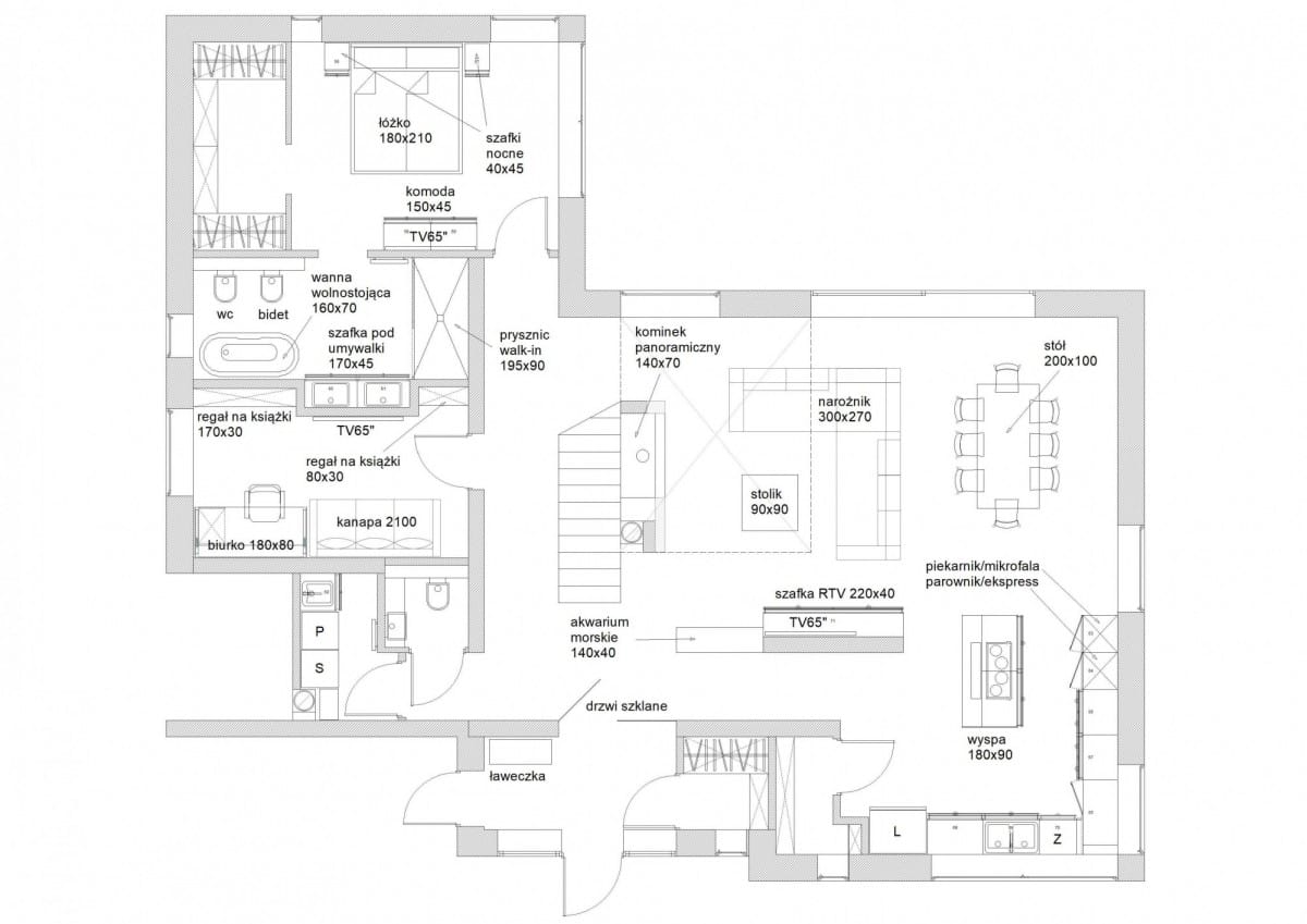
Rozkład pomieszczeń:

Parter:

• przestronny salon z antresolą i wyjściem na ogród
• otwarta kuchnia z pełnym wyposażeniem oraz spiżarnia
• sypialnia master z prywatną łazienką i garderobą
• gabinet
• oddzielne WC
• pralnia (pralka i suszarka)
• garderoba przy wejściu

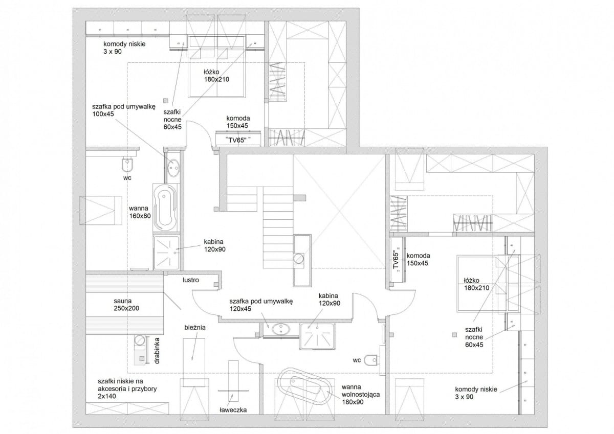
Piętro:

• trzy sypialnie
• dwie łazienki
• garderoby

Standard wykończenia:

Dom wykończony według projektu architekta, z dbałością o spójność stylistyczną i funkcjonalność.

• drewniane podłogi układane w jodełkę
• schody drewniane
• spieki kwarcowe przy kominku i ścianie RTV
• łazienki wykończone płytami wielkoformatowymi, baterie podtynkowe, kamienne blaty
• w pełni wyposażona kuchnia z zabudową i sprzętem AGD wysokiej klasy
• elektrycznie sterowane zasłony w strefie dziennej

Najważniejsze atuty:

• dom wolnostojący o powierzchni 217 m2
• działka 1500 m2, w pełni zagospodarowana
• bezpośrednie sąsiedztwo terenów zielonych
• wykończenie materiałami najwyższej klasy
• inteligentny system zarządzania domem KNX

Technologia i systemy:

Inteligentny dom KNX:

• sterowanie oświetleniem, żaluzjami i ogrzewaniem
• kontrola klimatyzacji i rekuperacji
• system alarmowy i monitoring
• zarządzanie dostępem i bramami
• czujniki gazu i zalania

Energooszczędność i niezależność:

• pompa ciepła Viessmann (16 kW)
• piec gazowy Viessmann (do 35 kW)
• kominek na drewno
• instalacja fotowoltaiczna 8,2 kWp
• magazyn energii 30 kWh
• automatyczna optymalizacja źródeł ogrzewania

Komfort użytkowania:

• klimatyzacja w strefie dziennej i wszystkich sypialniach (Mitsubishi)
• ogrzewanie podłogowe z podziałem na strefy
• rekuperacja (Defro)
• system audio w całym domu
• instalacja TV i Wi-Fi w każdym pomieszczeniu
• odkurzacz centralny

Wyposażenie dodatkowe:

• stacja uzdatniania wody Aquastilla DUO + zmiękczacz
• okna trzyszybowe z zewnętrznymi żaluzjami aluminiowymi
• instalacja przygotowana pod basen lub jacuzzi
• dodatkowy taras pod pergolę

Działka i otoczenie:

• w pełni zagospodarowany ogród zgodny z projektem
• system automatycznego nawadniania (studnia głębinowa + zbiornik na deszczówkę)
• wykonane tarasy i podjazdy
• ogrodzenie betonowe z aluminiowymi przęsłami, bramy i furtki
• wysoki poziom prywatności

Lokalizacja:

Kanie - spokojna i prestiżowa okolica w sąsiedztwie Komorowa i Nadarzyna, z szybkim dojazdem do Warszawy, oferująca jednocześnie bezpośredni kontakt z naturą.

Zapraszamy do kontaktu w celu umówienia indywidualnej prezentacji.

Niniejsze ogłoszenie ma charakter wyłącznie informacyjny i nie stanowi oferty w rozumieniu art. 66 §1 Kodeksu cywilnego. Dane w nim zawarte mogą ulec zmianie. Wizualizacje, rzuty oraz materiały graficzne przedstawione w ofercie mają charakter wyłącznie poglądowy i służą celom ilustracyjnym.



Pokaż więcejmniej  

 
Ogólne warunki:
Rynek:Wtórny
Cena:3 750 000 PLN
Waluta:PLN
Cena za m2:17 281 PLN
Liczba pokoi:6
 
Standard domu:
Stan budynku:wysoki standard
Rok budowy:2023
Liczba pięter:2
 
Bezpieczeństwo:
Monitoring:tak
Teren strzeżony:nie
 
Pomieszczenia i pokoje:
Typ kuchni:Z oknem otwarta na salon
 
Numer oferty:
CRM:34964550107

Pokaż więcejmniej  

Tagi

Masz pytania? Napisz!

Przepisz kod captcha:

Polecamy podobne oferty

Zapisz się na powiadomienia o podobnych ofertach

Przepisz kod captcha:

Zaktualizowaliśmy naszą Politykę Prywatności.

Nowe zapisy w Polityce Prywatności wynikają z konieczności dostosowania naszych działań oraz dokumentacji do nowych wymagań europejskiego Rozporządzenia o Ochronie Danych Osobowych (RODO), które jest stosowane od 25 maja 2018 r.

Zaawansowane