Mieszkanie 6 pokojowe na Sprzedaż

6 pokoje 118.05m²
MAZOWIECKIE Warszawa Śródmieście Północne ul. Nowy Świat

2 480 000 PLN

Mieszkanie na sprzedaż 6 pokoje Nowy Świat, Warszawa 118.05 m²

2 480 000 PLN Negocjuj cenę >

MAZOWIECKIE Warszawa Śródmieście Północne ul. Nowy Świat MAPA

1/30

2 480 000 PLN WYŁĄCZNOŚĆ   

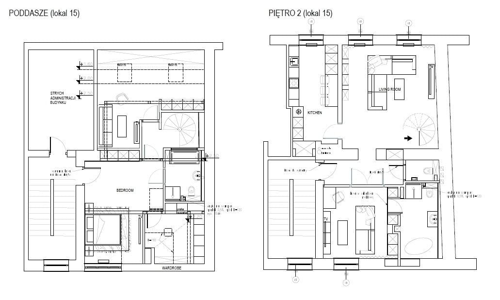
Unikatowy dwupoziomowy apartament na sprzedaż przy Nowym Świecie

Mamy przyjemność zaprezentować unikatową dwupoziomową nieruchomość inwestycyjną lub mieszkanie dla dużej rodziny z 5 sypialniami, usytuowane przy ulicy Nowy Świat.

Oferujemy wyjątkowe mieszkanie w doskonałej lokalizacji przy ul. Nowy Świat, idealne dla osób ceniących bliskość miejskiego życia i jednocześnie chcących stworzyć wnętrze dopasowane do własnych potrzeb.
Apartament składający się z dwóch oddzielnych poziomów do remontu i do połączenia wewnętrzną klatką schodową składa się z:


  • 6 pokoi,

  • kuchni,

  • 2 łazienek,

  • toalety,

  • przedpokoju.


Pierwszy poziom to klasyczna przestrzeń mieszkalna ok powierzchni ok. 78m2, natomiast drugi poziom stanowi urokliwe poddasze. Nieruchomość wymaga remontu i jest świetną propozycją dla rodzin, które chcą mieszkać w samym sercu miasta, lub jako inwestycja na wynajem lub na cele komercyjne. W budynku nie ma windy, nieruchomość znajduje się na 2-gim i 3-cim piętrze budynku.

Budynek przy Nowym Świecie w Warszawie został zbudowany około 1823 roku, z architekturą przypisywaną Adolfowi Schuchowi. W pierwszej połowie XIX wieku mieściła się w nim kawiarnia i rezydencja biskupa, a w drugiej połowie wieku stał się siedzibą redakcji tygodnika "Kłosy", biblioteki i magazynu mody, a po wojnie został zniszczony, a następnie odbudowany z bez odtworzenia balkonów i ozdobnego naczółka. Na parterze mieszczą się lokale usługowe, natomiast wyższe kondygnacje i poddasze pełnią funkcję mieszkalną, zachowując charakterystyczny klimat warszawskich kamienic.

Kamienica przy ulicy Nowy Świat znajduje się w samym centrum Warszawy, w jednej z najbardziej prestiżowych i rozpoznawalnych części miasta. To wyjątkowe miejsce, gdzie zabytkowe kamienice łączą się z eleganckimi butikami, klimatycznymi kawiarniami i restauracjami, tworząc niepowtarzalną, tętniącą życiem atmosferę. W bezpośrednim otoczeniu znajdują się wszystkie niezbędne usługi, a dodatkowym atutem jest doskonała komunikacja, tuż obok znajduje się stacja metra Nowy Świat-Uniwersytet oraz liczne przystanki autobusowe, co gwarantuje szybki dojazd do innych części miasta. To lokalizacja, która w wyjątkowy sposób łączy klimat zabytkowego centrum z wygodą nowoczesnej infrastruktury. Miejsce eleganckie, pełne historii i tradycji, a jednocześnie dynamiczne i nowoczesne.

W ofercie załączone są rzuty przykładowej aranżacji nieruchomości.

Zapraszamy do kontaktu, z przyjemnością udzielimy dodatkowych informacji oraz umówimy prezentację nieruchomości.



Pokaż więcejmniej  

 
Ogólne warunki:
Cena:2 480 000 PLN
Waluta:PLN
Liczba pokoi:6
Powierzchnia:118.05 m²
Cena za m2:21 008 PLN
Czynsz administracyjny:1762 zł
Rynek:Wtórny
Stan prawny:
 
Opis budynku:
Liczba pięter:3
Piętro:2
Stan budynku:do remontu
Winda:nie
 
Standard mieszkania:
Stan nieruchomości:do remontu
 
Powierzchnia dodatkowa:
Balkon:nie
Komórka/Piwnica:nie
Loggia:nie
Ogródek:nie
Schowek:nie
Taras:nie
 
Bezpieczeństwo:
Monitoring:nie
Ochrona:nie
Teren ogrodzony:nie
 
Numer oferty:
CRM:34964532526

Pokaż więcejmniej  

Masz pytania? Napisz!

Przepisz kod captcha:

Polecamy podobne oferty

Zapisz się na powiadomienia o podobnych ofertach

Przepisz kod captcha:

Zaktualizowaliśmy naszą Politykę Prywatności.

Nowe zapisy w Polityce Prywatności wynikają z konieczności dostosowania naszych działań oraz dokumentacji do nowych wymagań europejskiego Rozporządzenia o Ochronie Danych Osobowych (RODO), które jest stosowane od 25 maja 2018 r.

Zaawansowane