Lokal użytkowy  pokojowe na Sprzedaż

5 pokoje 194.03m²
WIELKOPOLSKIE Poznań Piątkowo ul. Władysława Biegańskiego

1 200 000 PLN

Wolnostojący dom do remontu 194.03 m²

1 200 000 PLN Negocjuj cenę >

WIELKOPOLSKIE Poznań Piątkowo ul. Władysława Biegańskiego MAPA

1/26

1 200 000 PLN WYŁĄCZNOŚĆ   

Szukasz nowej siedziny dla swojej firmy? Może zainteresuje Cię budynek u zbiegu ulic Biegańskiego i Strugarka.

Wolnostojący budynek mieszkalny o bryle w kształcie litery L, z dwiema kondygnacjami nadziemnymi oraz piwnicą (budynek w większości podpiwniczony).
Dom wybudowany w tradycyjnej technologii murowanej z cegły, ze stropami żelbetowymi i solidną konstrukcją charakterystyczną dla budownictwa z tego okresu. Wnętrza wykończone m.in. drewnianą klepką dębową, w części pomieszczeń zastosowano terrakotę lub lastriko.

Funkcjonalny układ obejmuje m.in. hall, garaż, pokój oraz taras, a dodatkową przestrzeń zapewniają balkony.

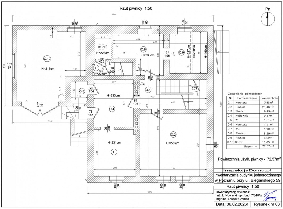
Poziom „-1”
Korytarz - 3,89m2
Piwnica - 20,46m2
Piwnica - 9,49m2
Kotłownia - 9,17m2
WC - 1,51m2
Korytarz - 1,11m2
WC - 1,98m2
Piwnica - 8,29m2
Piwnica - 6,02m2
Garaż - 10,65m2
Razem - 72,57m2

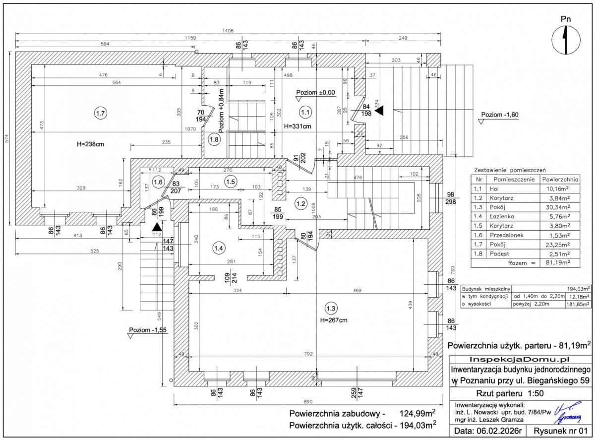
Poziom „0”
Hol - 10,16m2
Korytarz - 3,84m2
Pokój - 30,34m2
Lazienka - 5,76m2
Korytarz - 3,80m2
Przedsionek - 1,53m2
Pokój - 23,25m2
Podest - 2,51 m2
Razem - 81,19m2

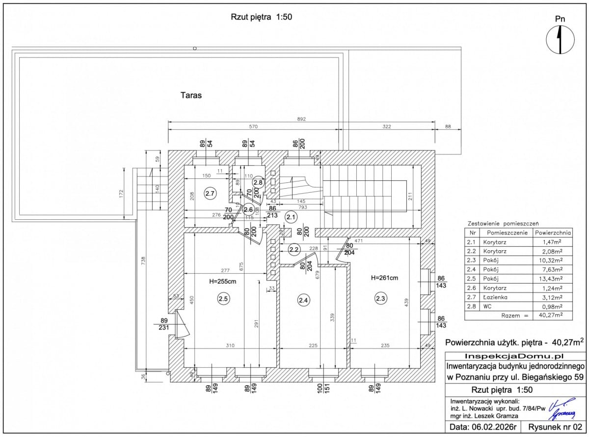
Poziom „1”
Korytarz - 1,47 m2
Korytarz - 2,08m2
Pokój - 10,32m2
Pokój - 7,63m2
Pokój - 13,43m2
Korytarz - 1,24m2
Lazienka - 3,12m2
WC - 0,98m2
Razem - 40,27m2

Łącznie: 194,03 m² (po podłodze 206,21 m²)

Dzięki położeniu na narożnej działce o powierzchni 455 m² Twoja firma będzie miała bardzo dobrą ekspozycję i po usunięciu ogrodzenia istnieje możliwość urządzenia kilku miejsc parkingowych na terenie posesji.

Budynek stanowi dobrą bazę do modernizacji według własnej aranżacji i może być również interesującą propozycją użytkowe.






Pokaż więcejmniej  

 
Ogólne warunki:
Rynek:Wtórny
Cena:1 200 000 PLN
Waluta:PLN
Powierzchnia:194.03 m²
Cena za m2:6 185 PLN
Stan nieruchomości:
 
Opis budynku:
Rodzaj budynku:
Rok budowy:1968
Stan budynku:do remontu
Liczba pięter:1
Winda:nie
 
Bezpieczeństwo:
Monitoring:nie
Ochrona:nie
 
Powierzchnia dodatkowa:
Balkon:tak
Komórka/Piwnica:tak
Loggia:nie
 
Numer oferty:
CRM:34964540200

Pokaż więcejmniej  

Tagi

Masz pytania? Napisz!

Przepisz kod captcha:

Polecamy podobne oferty

Zapisz się na powiadomienia o podobnych ofertach

Przepisz kod captcha:

Zaktualizowaliśmy naszą Politykę Prywatności.

Nowe zapisy w Polityce Prywatności wynikają z konieczności dostosowania naszych działań oraz dokumentacji do nowych wymagań europejskiego Rozporządzenia o Ochronie Danych Osobowych (RODO), które jest stosowane od 25 maja 2018 r.

Zaawansowane